十大足彩平台

  • 足彩平台门户网站
  •   
  • 关注我们:
    • 搜索
今天是2019年4月13日 星期六欢迎进入开平市自然资源局!
太阳城娱乐 买球app 澳门金沙娱乐城 半岛体育 博彩平台 IM体育试玩
您当前的位置:首页 > 开平市自然资源局 > 规划公告
关于开平市长沙区长青路6号地块(天御云景住宅小区)住宅第3栋建筑设计报建图调整的公示
发布日期:2019-09-16 09:33
来源:本站
打印
【字体:

关于开平市长沙区长青路6号地块(天御云景住宅小区)住宅第3栋建筑设计报建图调整的公示

 

开平市云景房地产开发有限公司向我局申请办理位于开平市长沙区长青路6号地块(天御云景住宅小区)的住宅第3栋建筑设计报建图调整手续。主要调整内容如下:

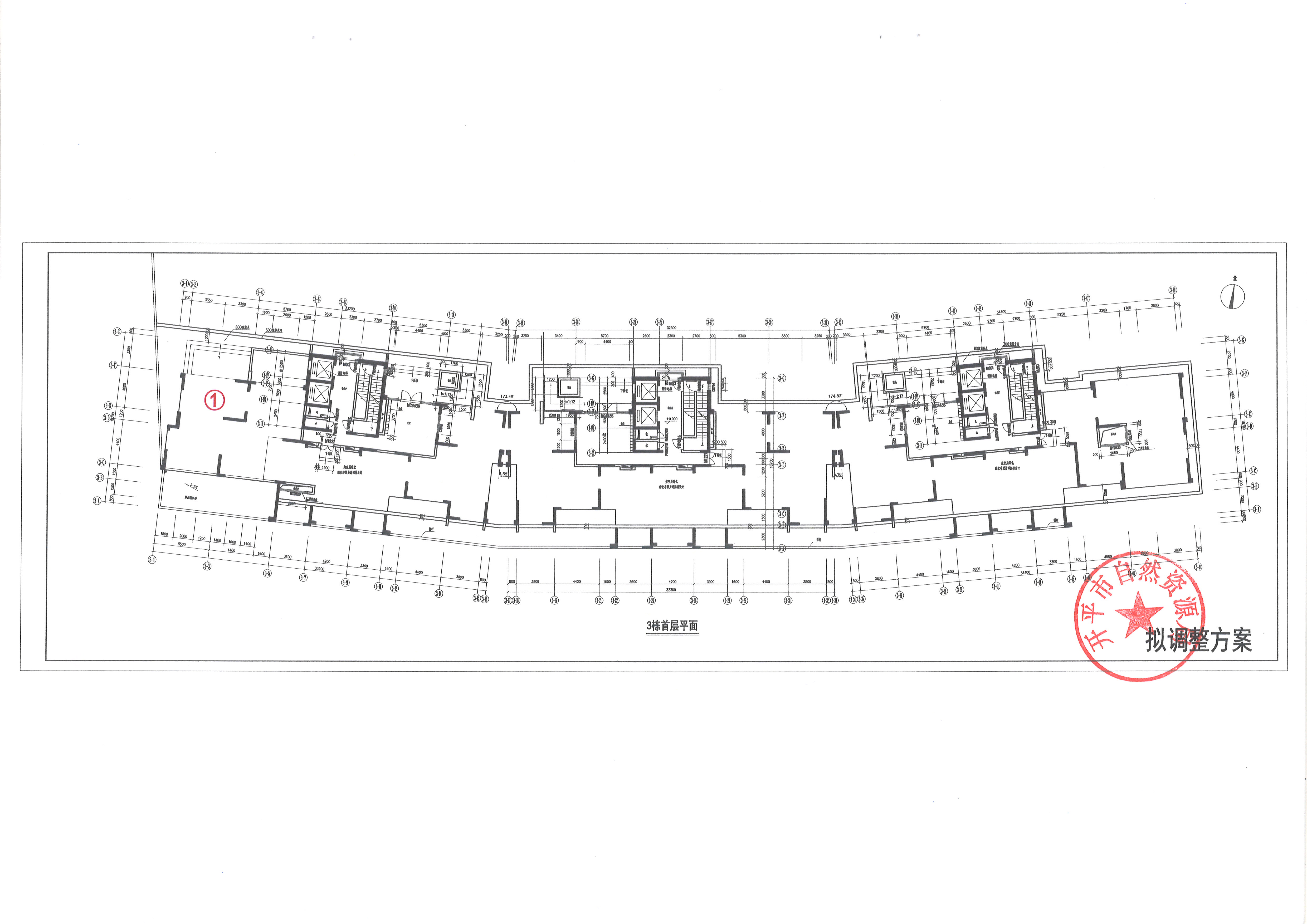
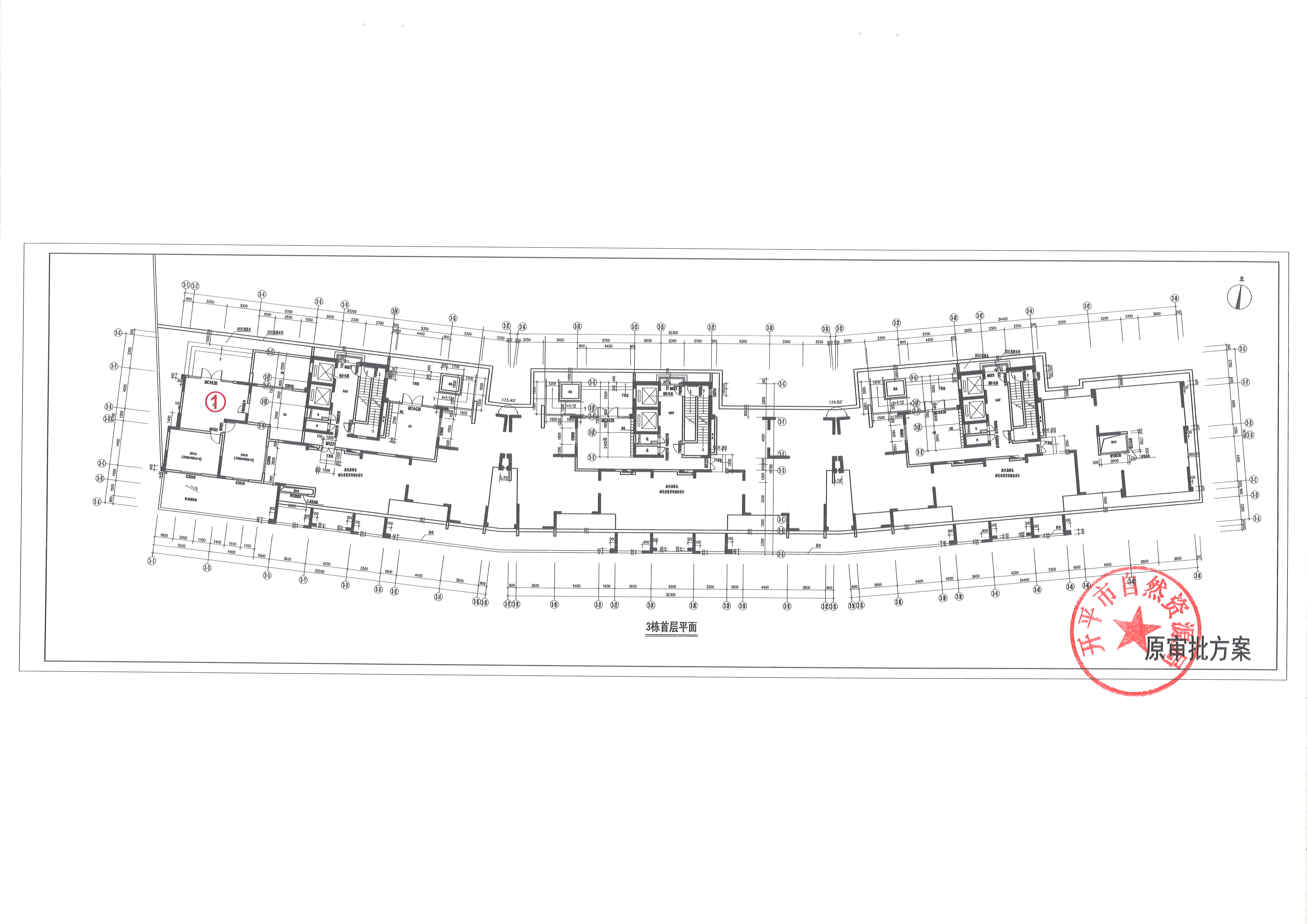
首层:①3-1至3-6轴交3-C轴交3-F轴取消男、女更衣室、设备室和门厅;

2-21层:①3-6至3-8轴交3-D轴至3-E轴增加一个门口;②3-10轴交3-D轴至3-E轴增加一个门口;③3-23轴交3-D轴至3-E轴增加一个门口;④3-27轴交3-D轴至3-E轴增加一个门口;⑤3-34至3-40轴交3-G轴至3-B轴调整户型布局,原一户住宅调整为两户住宅;⑥3-44轴交3-D轴至3-E轴增加一个门口;⑦3-44至3-49轴交3-G轴至3-B轴调整户型布局,原一户住宅调整为两户住宅。

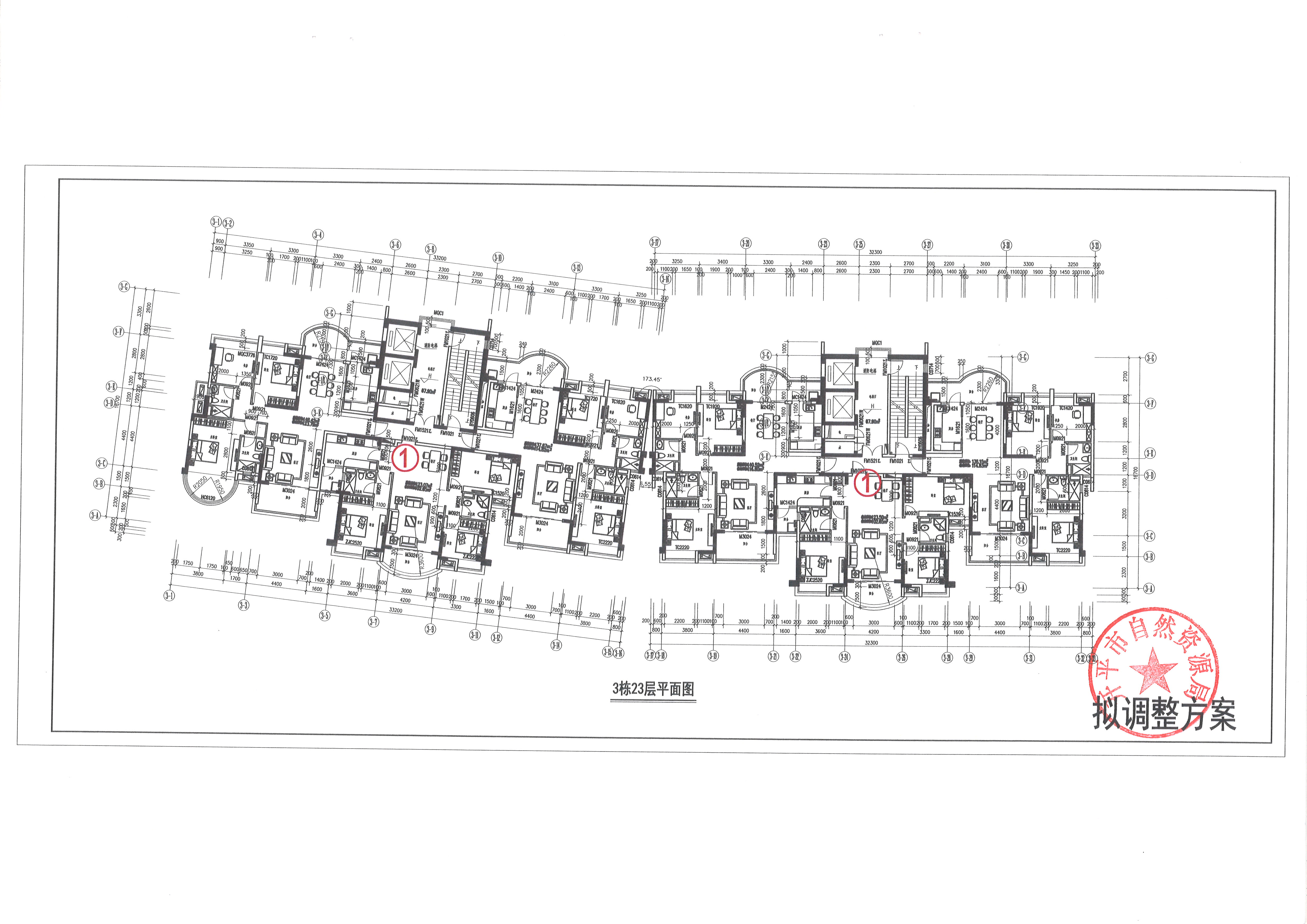
22层、23层:①3-1至3-33轴交3-A轴至3-G轴加建22层、23层(增加12户住宅)。

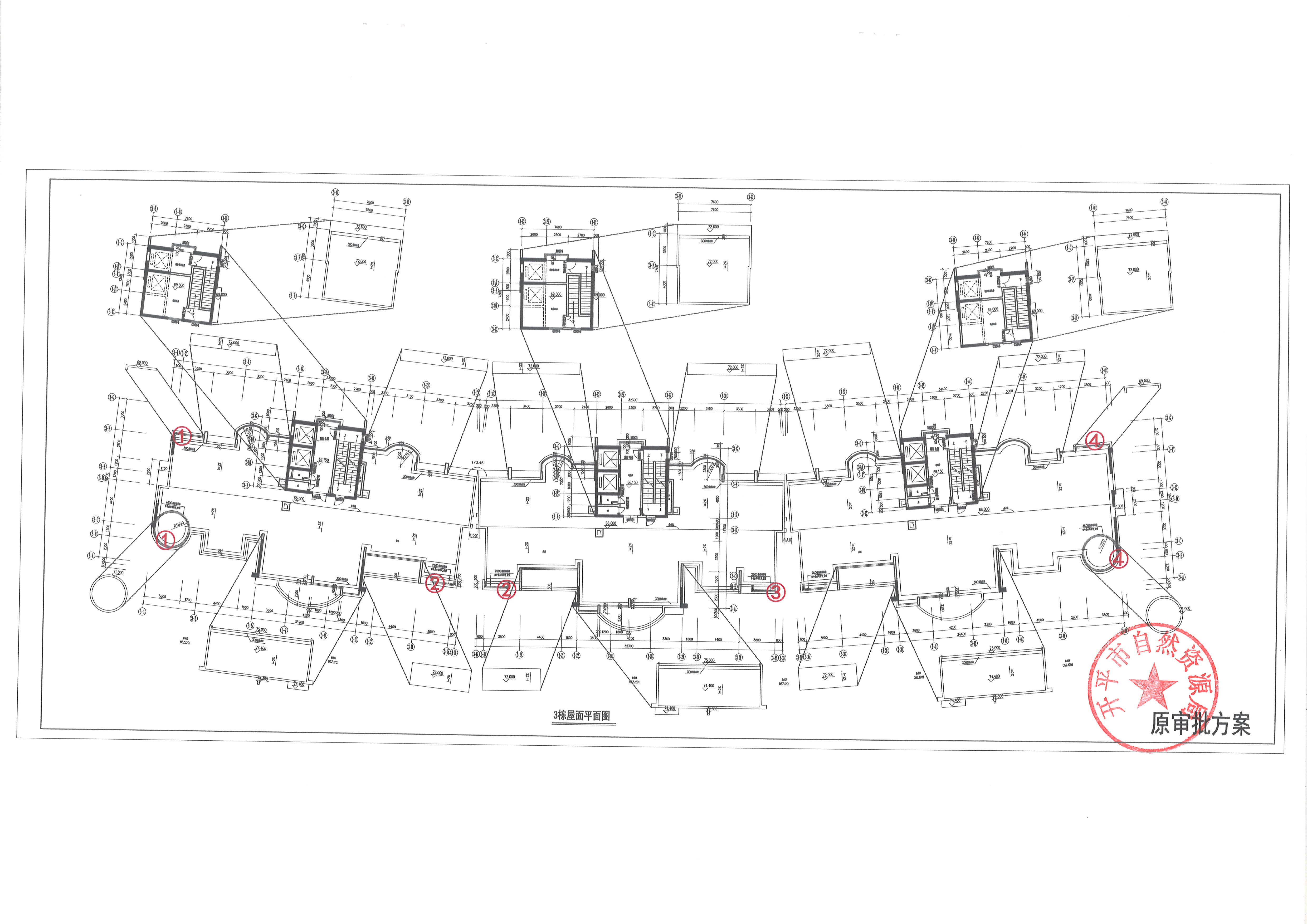
屋面层:①3-1至3-3轴交3-A轴至3-G轴取消屋面的玻璃幕墙装饰构件;②3-14至3-19轴交3-B轴取消屋面的玻璃幕墙装饰构件;③3-31至3-36轴交3-B轴取消屋面的玻璃幕墙装饰构建件;④3-48至3-49轴交3-A轴至3-G轴取消屋面的玻璃幕墙装饰构件(原22层的屋面部分)。

以上所提及的各项调整详见附图。

依照《中华人民共和国城乡规划法》有关规定,现将调整方案予以公示。

    受理方式:凡涉及本次规划方案调整的利害关系人,在公示期内凭本人身份证明、利害关系相关证明等文件来我局提出书面意见,逾期未提出的,视为放弃上述权利。

    公示时间:2019年9月16日至2019年9月25日17:30时止。

    公示地点:项目现场、城市南广场规划公告栏、开平市自然资源局网站(/kpgtzy)。

受理单位:开平市自然资源规划局  

联系电话:2257762     

联 系 人:张伟林

传真:2257700,E-MAIL:guihuaju@kaiping.gov.cn

联系地址:开平市新海东路1号,邮编:529300         

    

开平市自然资源局                                                                                                                                                 2019年9月16日

相关附件:

 
世界杯下注 |
联系我们 网站帮助 网站地图 服务申明
 版权所有:亚洲十大足彩排行榜    主办:亚洲十大足彩排行榜 
备案编号: 粤ICP备05079694号  网站标识码:4407830003  粤公网安备; 44078302000116
开平发布政务微博
开平发布政务微信