十大足彩平台

  • 亚洲十大足彩排行榜门户网站
  •   
  • 关注我们:
    • 搜索
今天是2019年4月13日 星期六欢迎进入开平市自然资源局!
金沙娱乐城 永利博彩 澳门网上博彩 博彩网站推荐 澳门网上博彩 网上赌搏平台网址大全
您当前的位置:首页 > 开平市自然资源局 > 规划公告
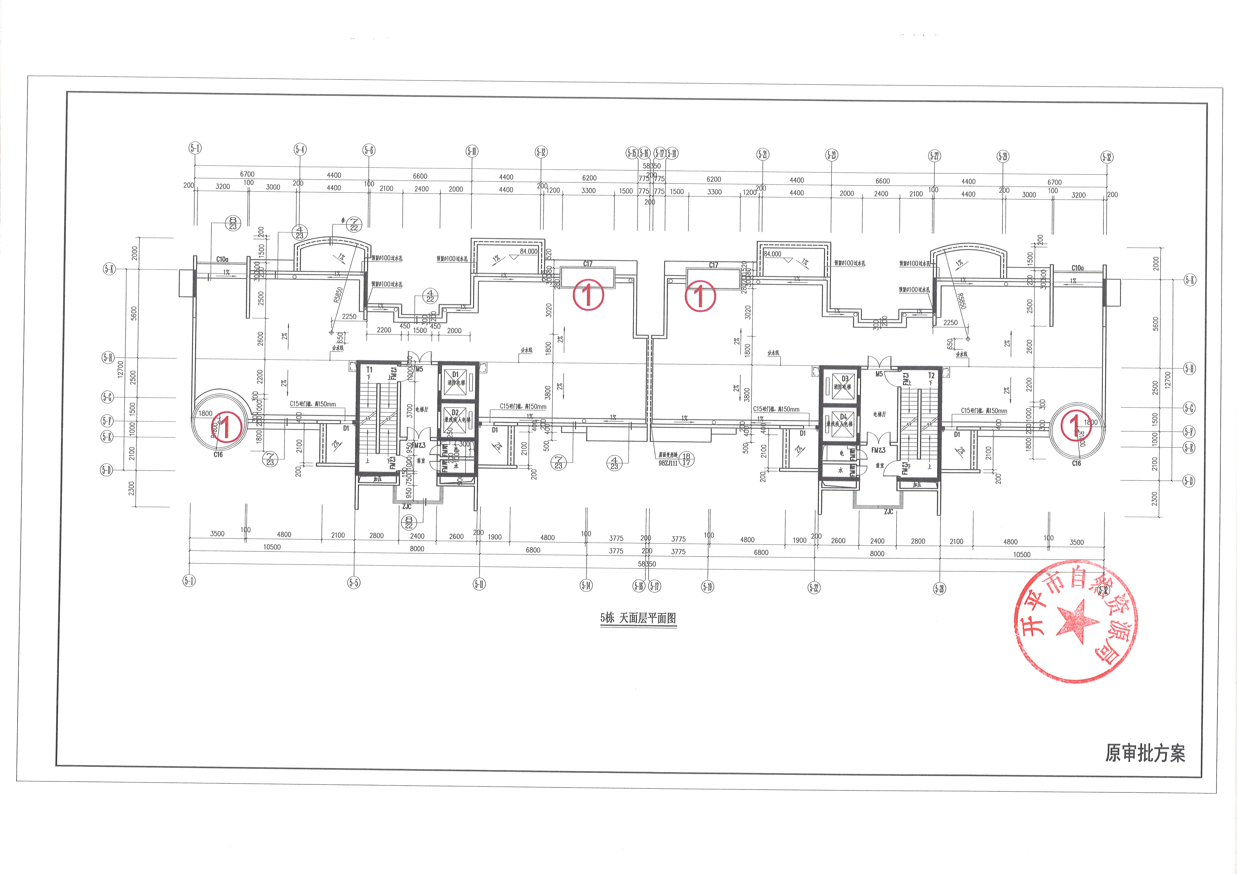
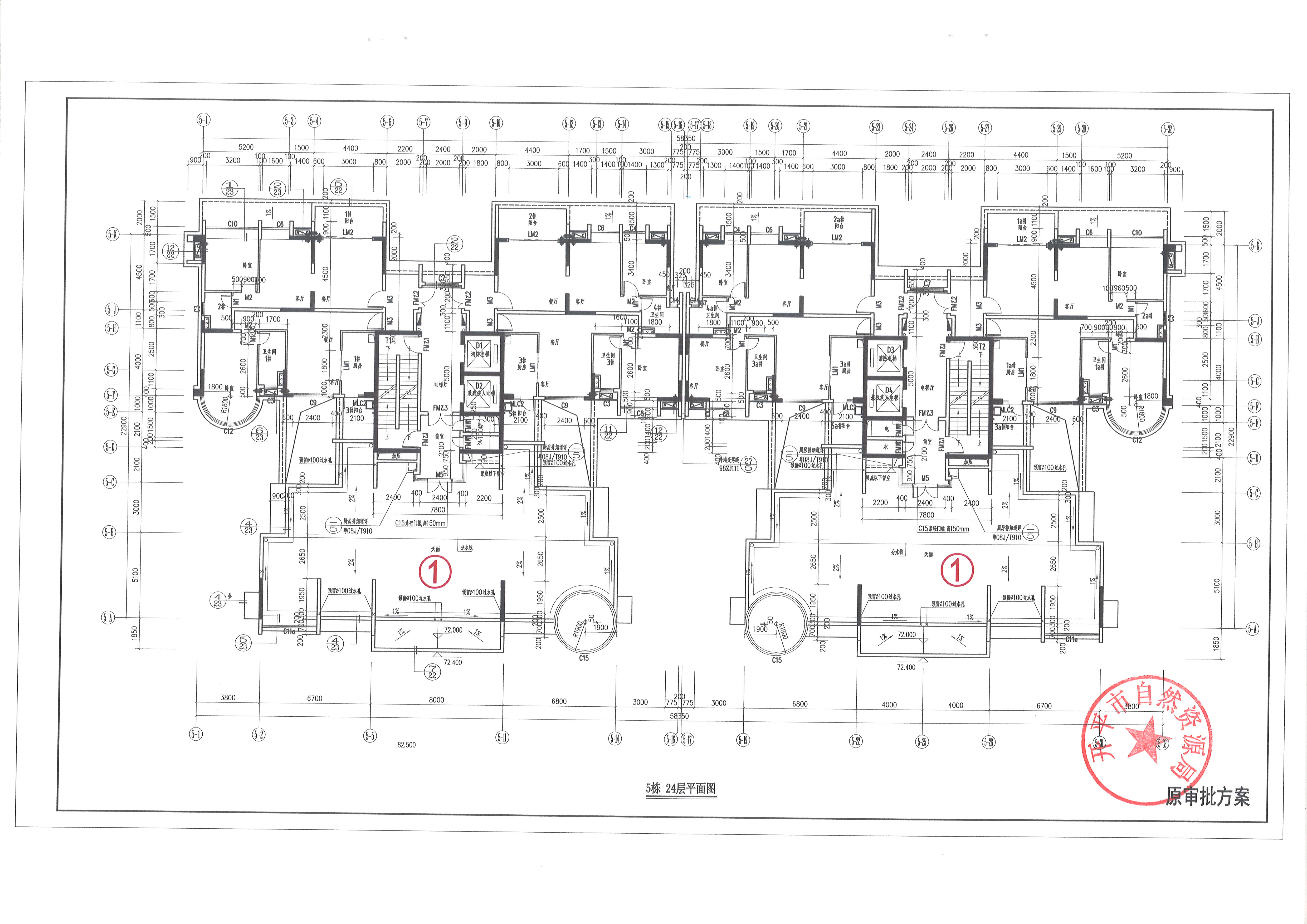
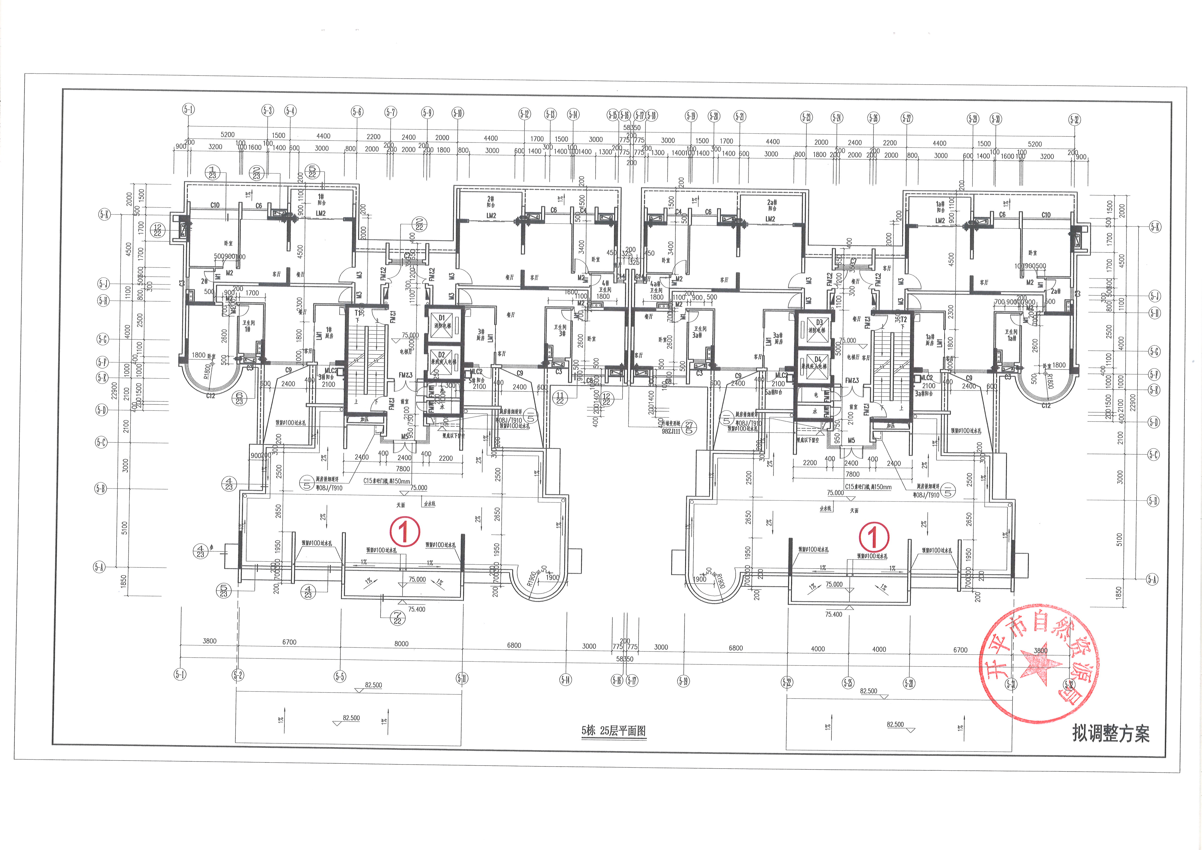
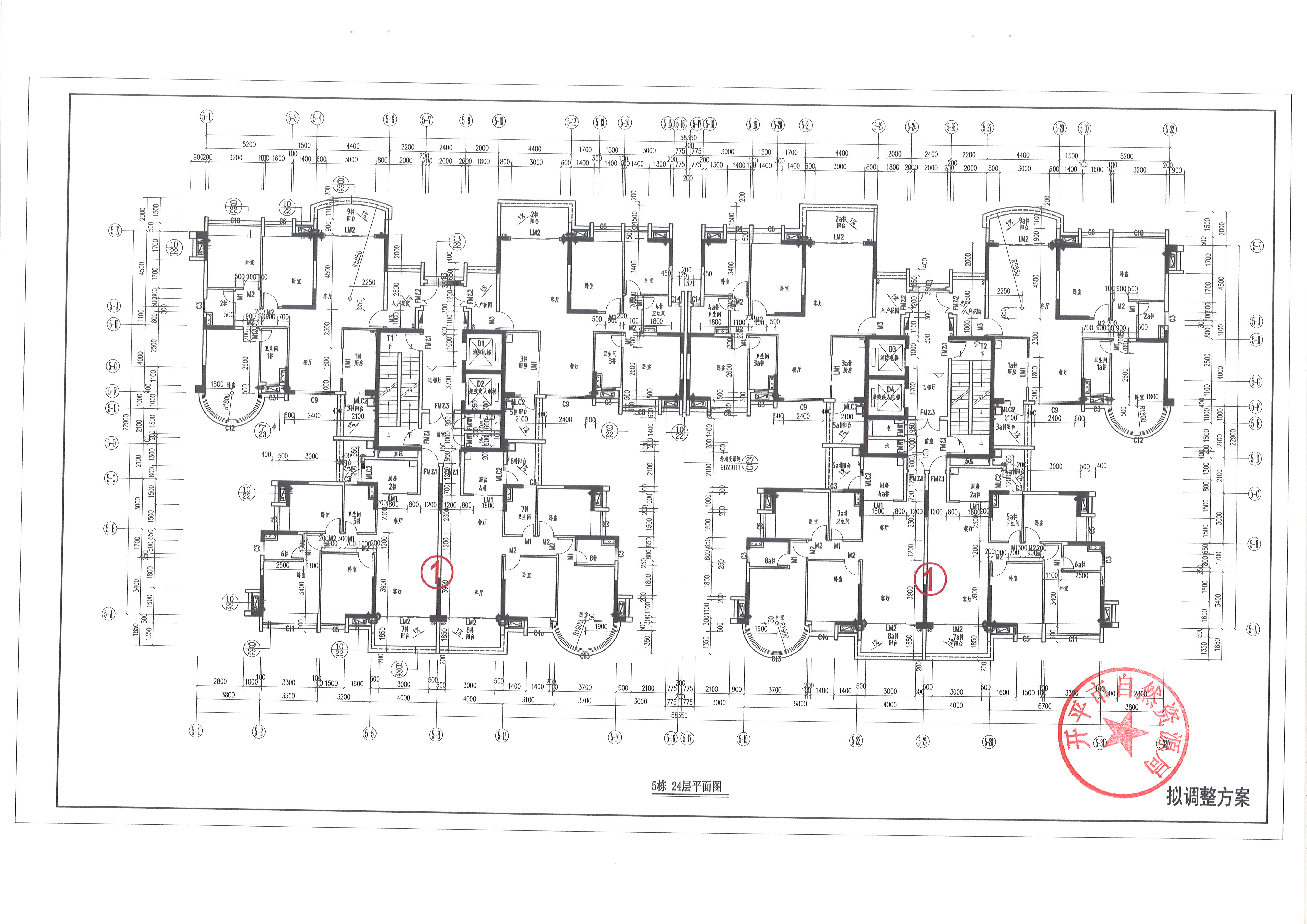
关于开平市长沙区长青路6号地块(天御云景住宅小区)住宅第5栋建筑设计报建图调整的公示
发布日期:2019-09-16 09:39
来源:本站
打印
【字体:

 

 

关于开平市长沙区长青路6号地块(天御云景住宅小区)住宅第5栋建筑设计报建图调整的公示

 

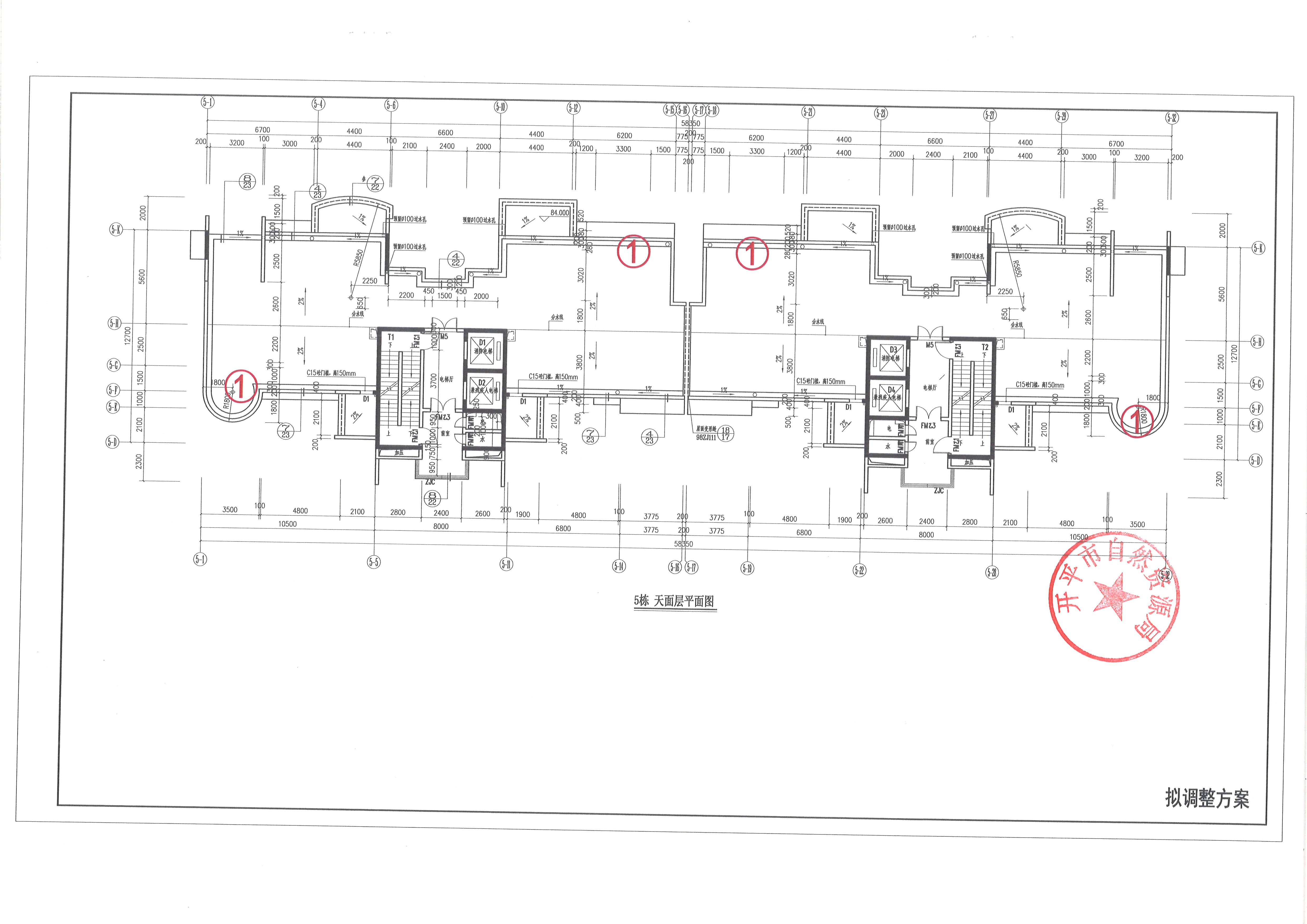
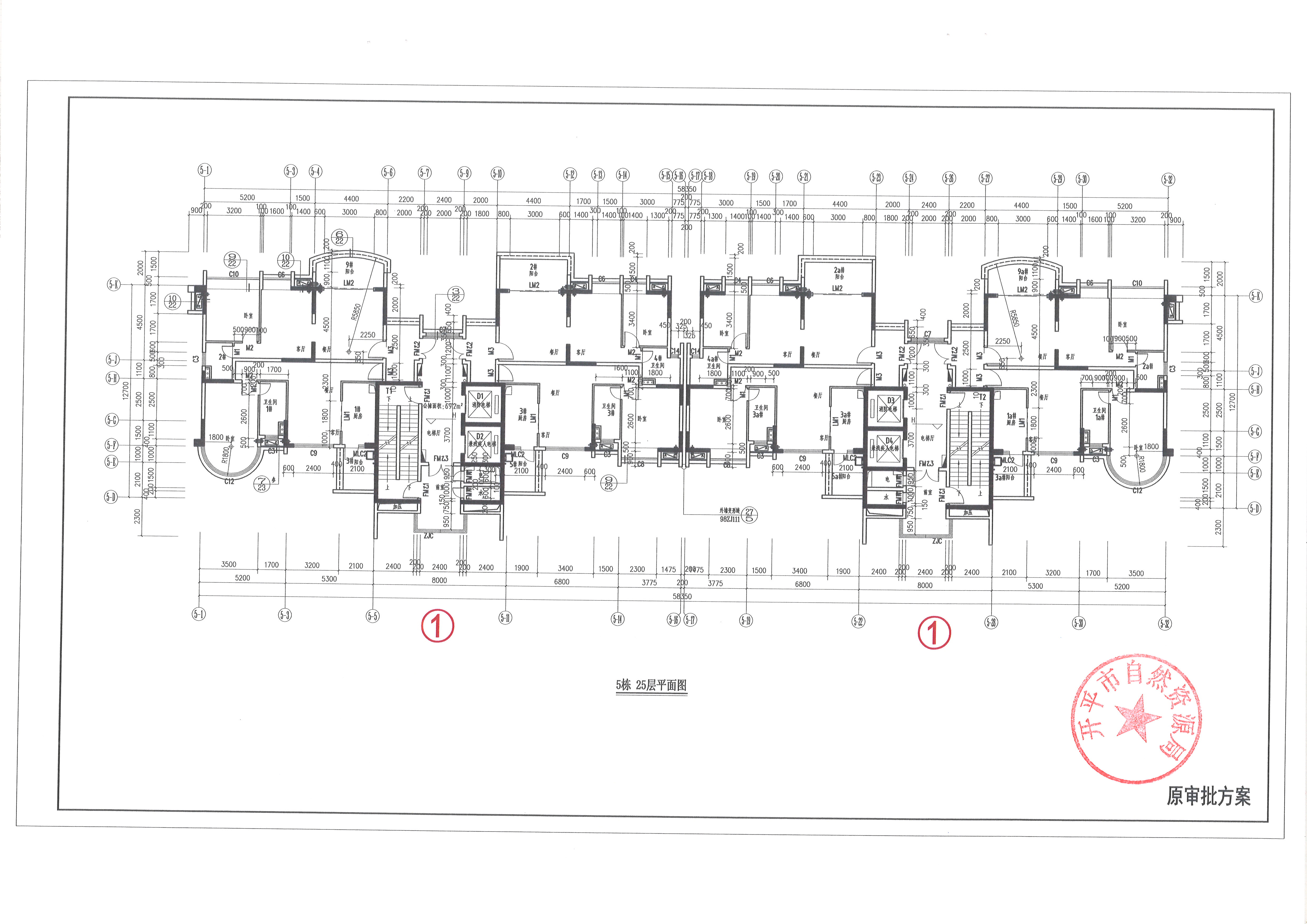
开平市云景房地产开发有限公司向我局申请办理位于开平市长沙区长青路6号地块(天御云景住宅小区)的住宅第5栋建筑设计报建图调整手续。主要调整内容如下:

24层:①5-2至5-14轴和5-19至5-31交5-A轴交5-D轴原天面调整为住宅(增加4套住宅);

25层:①5-2至5-14轴和5-19至5-31交5-A轴交5-D轴增加天面;

天面层:调整屋面的装饰构件;

以上所提及的各项调整详见附图。

依照《中华人民共和国城乡规划法》有关规定,现将调整方案予以公示。

    受理方式:凡涉及本次规划方案调整的利害关系人,在公示期内凭本人身份证明、利害关系相关证明等文件来我局提出书面意见,逾期未提出的,视为放弃上述权利。

    公示时间:2019年9月16日至2019年9月25日17:30时止。

    公示地点:项目现场、城市南广场规划公告栏、开平市自然资源局网站(/kpgtzy)。

受理单位:开平市自然资源规划局  

联系电话:2257762     

联 系 人:张伟林

传真:2257700,E-MAIL:guihuaju@kaiping.gov.cn

联系地址:开平市新海东路1号,邮编:529300        

     

开平市自然资源局                                                                                                                                                 2019年9月16日

相关附件:

 
博彩app |
联系我们 网站帮助 网站地图 服务申明
 版权所有:亚洲十大足彩排行榜    主办:足彩平台 
备案编号: 粤ICP备05079694号  网站标识码:4407830003  粤公网安备; 44078302000116
开平发布政务微博
开平发布政务微信