十大足彩平台

  • 十大足彩平台门户网站
  •   
  • 关注我们:
    • 搜索
今天是2019年4月13日 星期六欢迎进入开平市自然资源局!
开云电子(中国)官网 澳门新葡京博彩 太阳城娱乐 澳门威尼斯人app 皇冠体育 全球十大外围足球平台
您当前的位置:首页 > 开平市自然资源局 > 规划公告
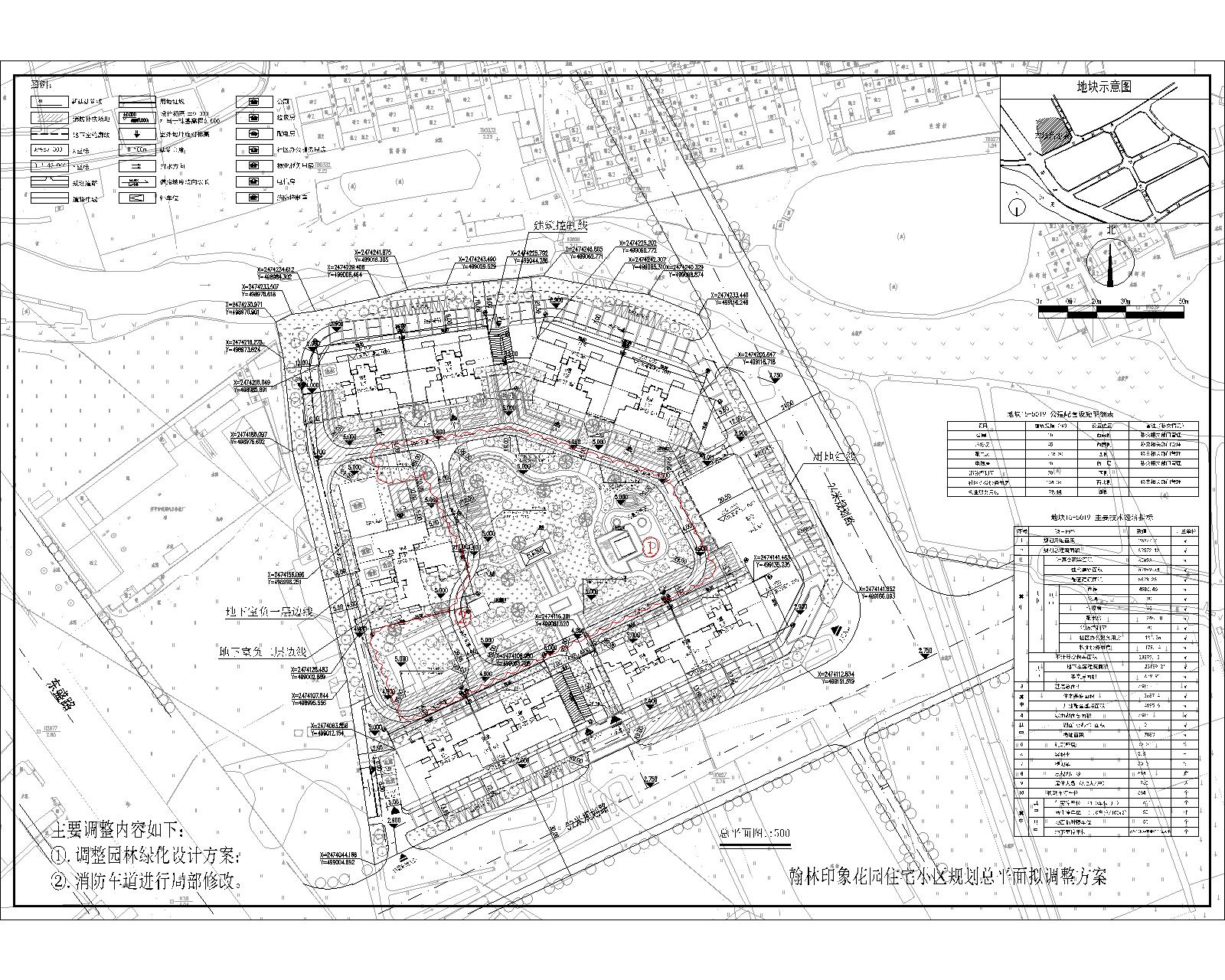
开平市长沙区三江实业开发公司申请位于开平市三江居委会富善坊村前(卫东围仔)的翰林印象花园住宅小区规划总平面方案调整的公示
发布日期:2019-12-26 09:28
来源:本网
打印
【字体:

开平市长沙区三江实业开发公司申请位于开平市三江居委会富善坊村前(卫东围仔)的翰林印象花园住宅小区规划总平面方案调整。

规划总平面方案主要调整内容:1.调整园林绿化设计方案;2.消防车道进行局部修改。本次规划总平面方案除上述2点调整外,其它均按原审批的规划方案实施。

依照《中华人民共和国城乡规划法》有关规定,现将该调整方案的具体内容予以公示。

受理方式:凡涉及该方案调整的利害关系人,在公示期内凭本人身份证明、利害关系相关证明等文件来我局提出书面意见,逾期未提出的,视为放弃上述权利。

公示时间:2019年12月26日至2020年1月4日17:30时止。

公示地点:项目现场、城市南广场规划公告栏、开平市自然资源局网站(/kpgtzy/)。

受理单位:开平市自然资源局

联系电话:2257762     联 系 人:蔡小冰

传真:2257711,E-MAIL:guihuaju@kaiping.gov.cn

联系地址:开平市新海东路1号,邮编:529300

                                                    开平市自然资源局

                                                    2019年12月26日

翰林印象花园住宅小区总图(原批)-Model.jpg翰林印象花园住宅小区总图(施工图园林修改)20190205(去签名)-Model.jpg

相关附件:

 
新葡京博彩 |
联系我们 网站帮助 网站地图 服务申明
 版权所有:亚洲十大足彩排行榜    主办:亚洲十大足彩排行榜 
备案编号: 粤ICP备05079694号  网站标识码:4407830003  粤公网安备; 44078302000116
开平发布政务微博
开平发布政务微信