十大足彩平台

  • 十大足彩平台门户网站
  •   
  • 关注我们:
    • 搜索
今天是2019年4月13日 星期六欢迎进入开平市自然资源局!
澳门博彩官网 太阳城app 皇冠体育 博彩平台 世界杯下注 新葡京博彩
您当前的位置:首页 > 开平市自然资源局 > 规划公告
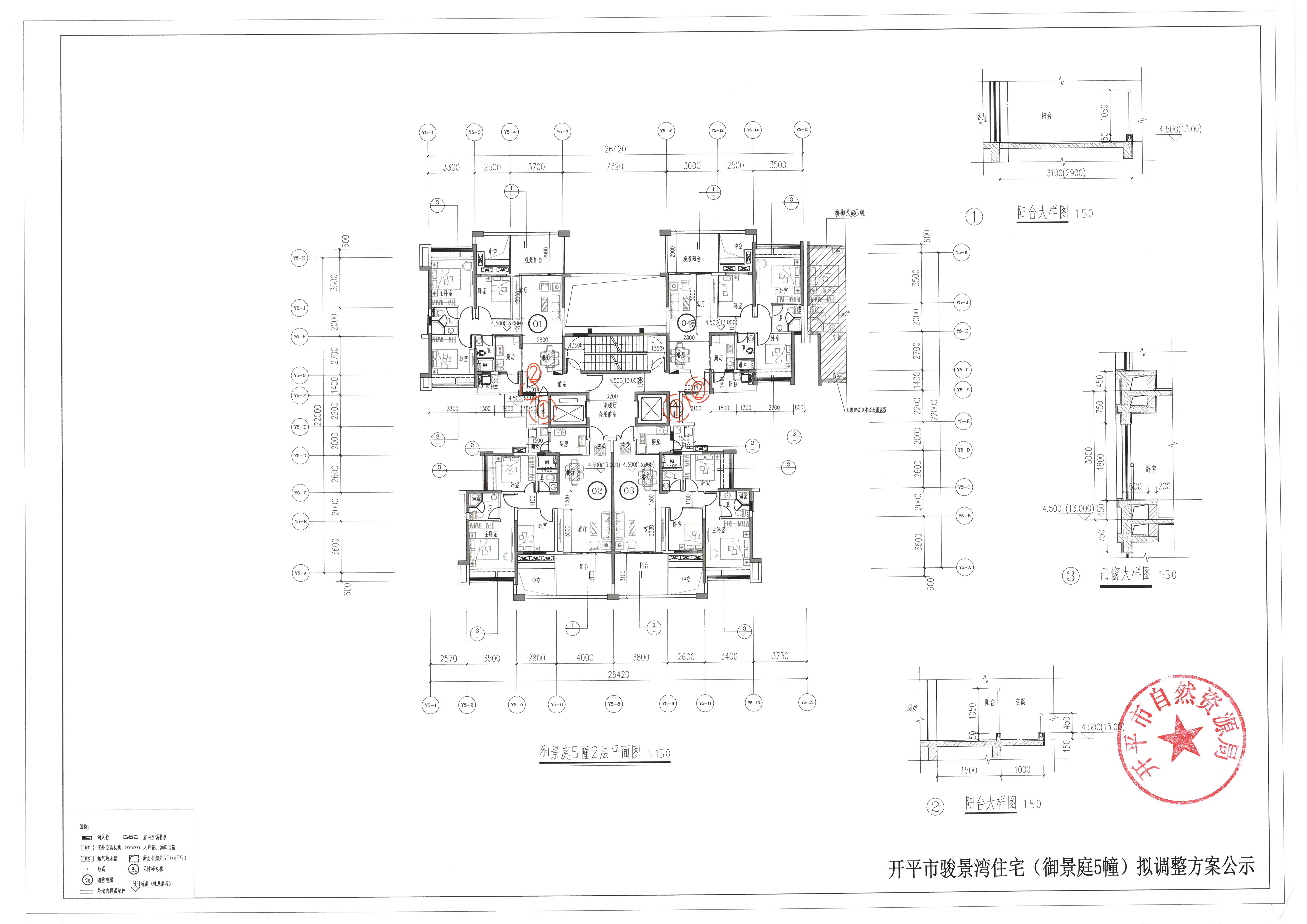
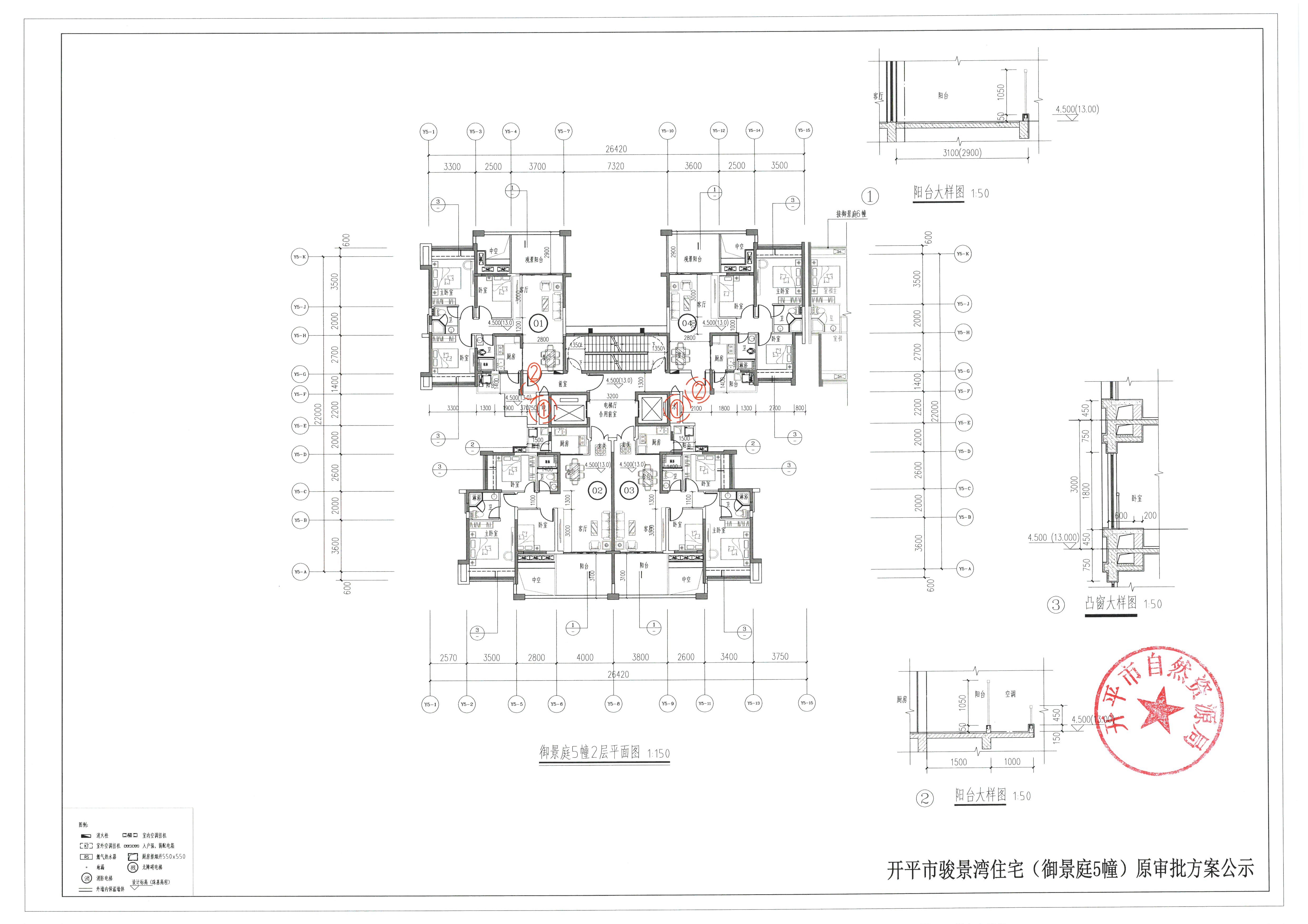
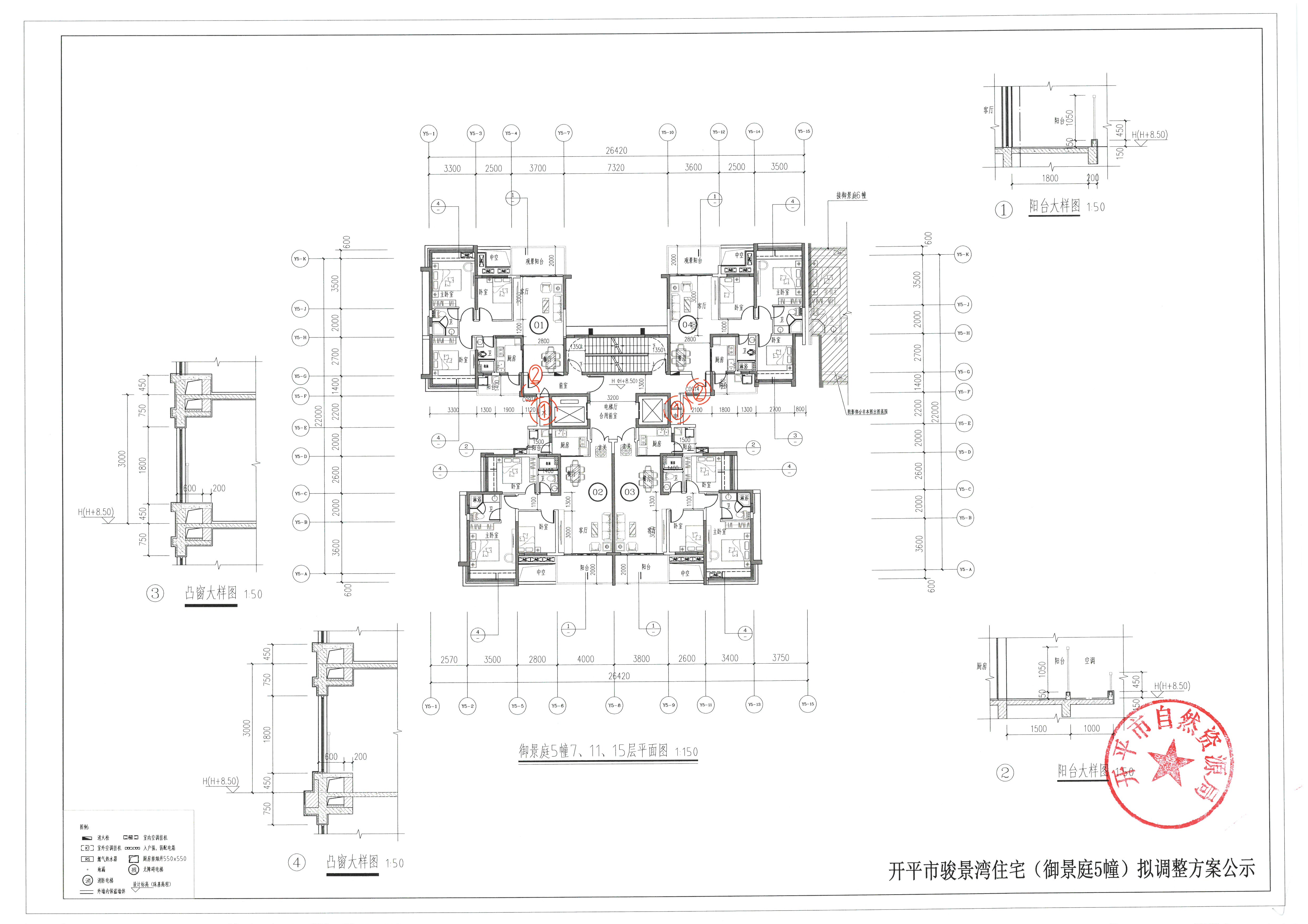
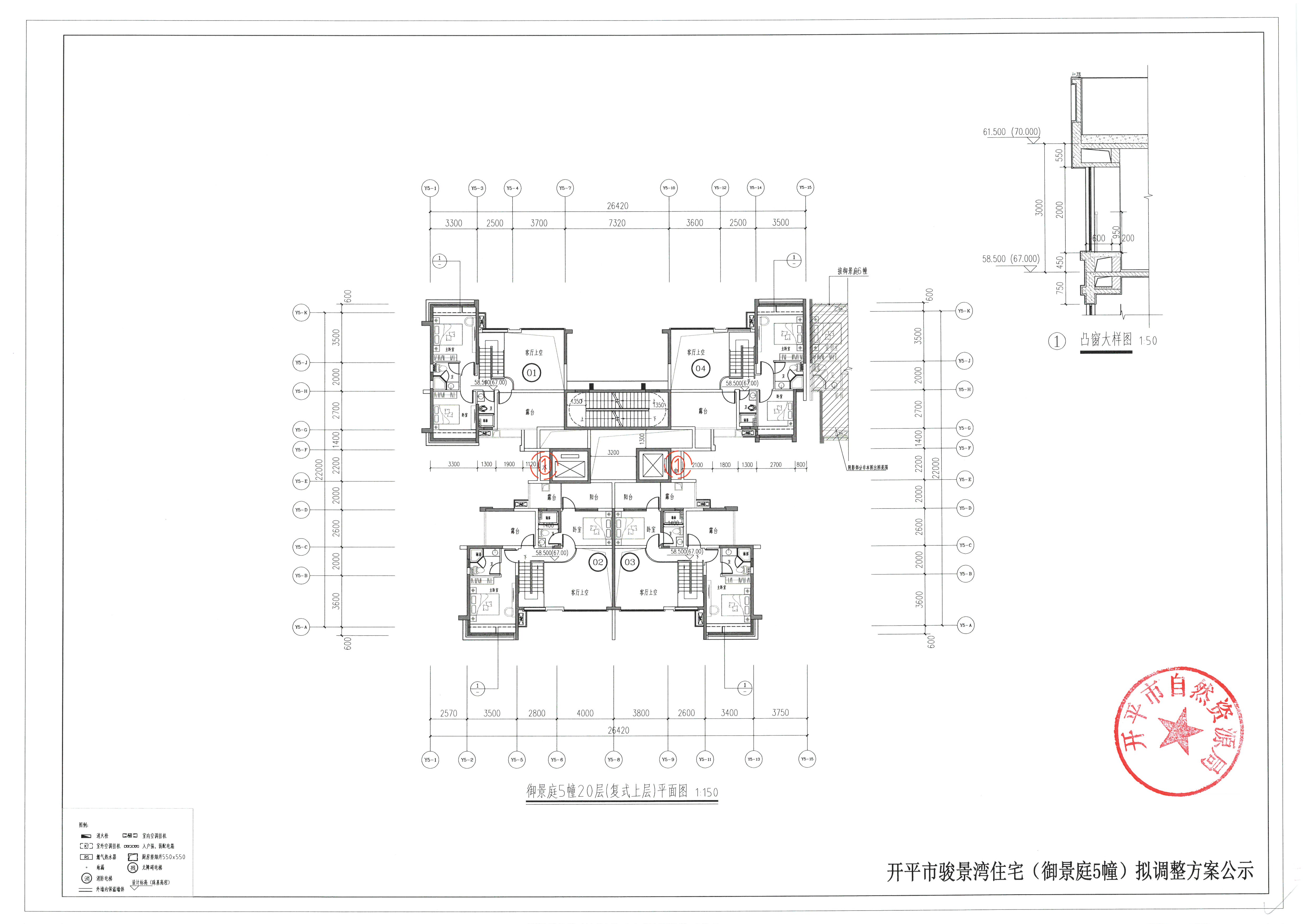
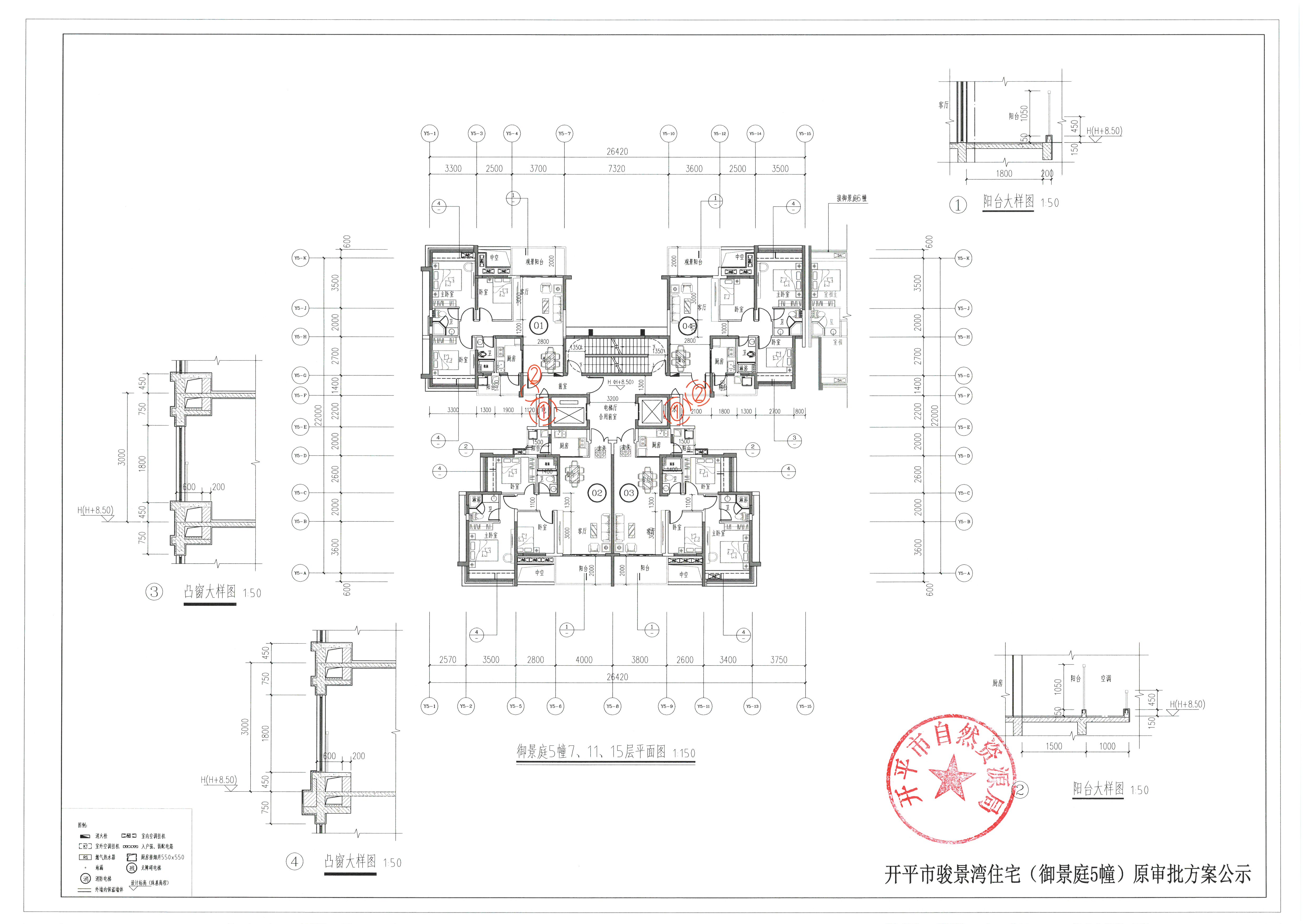
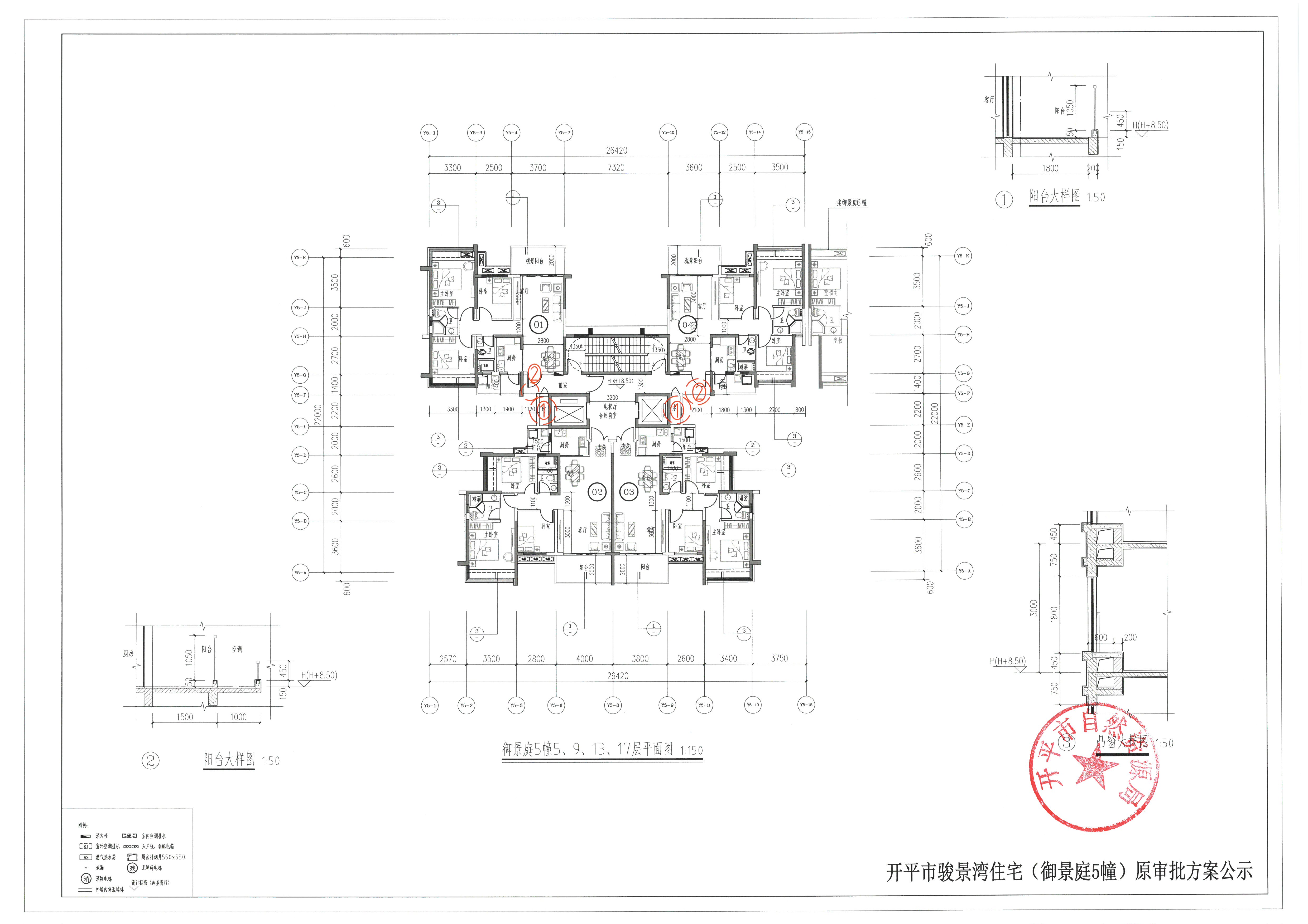
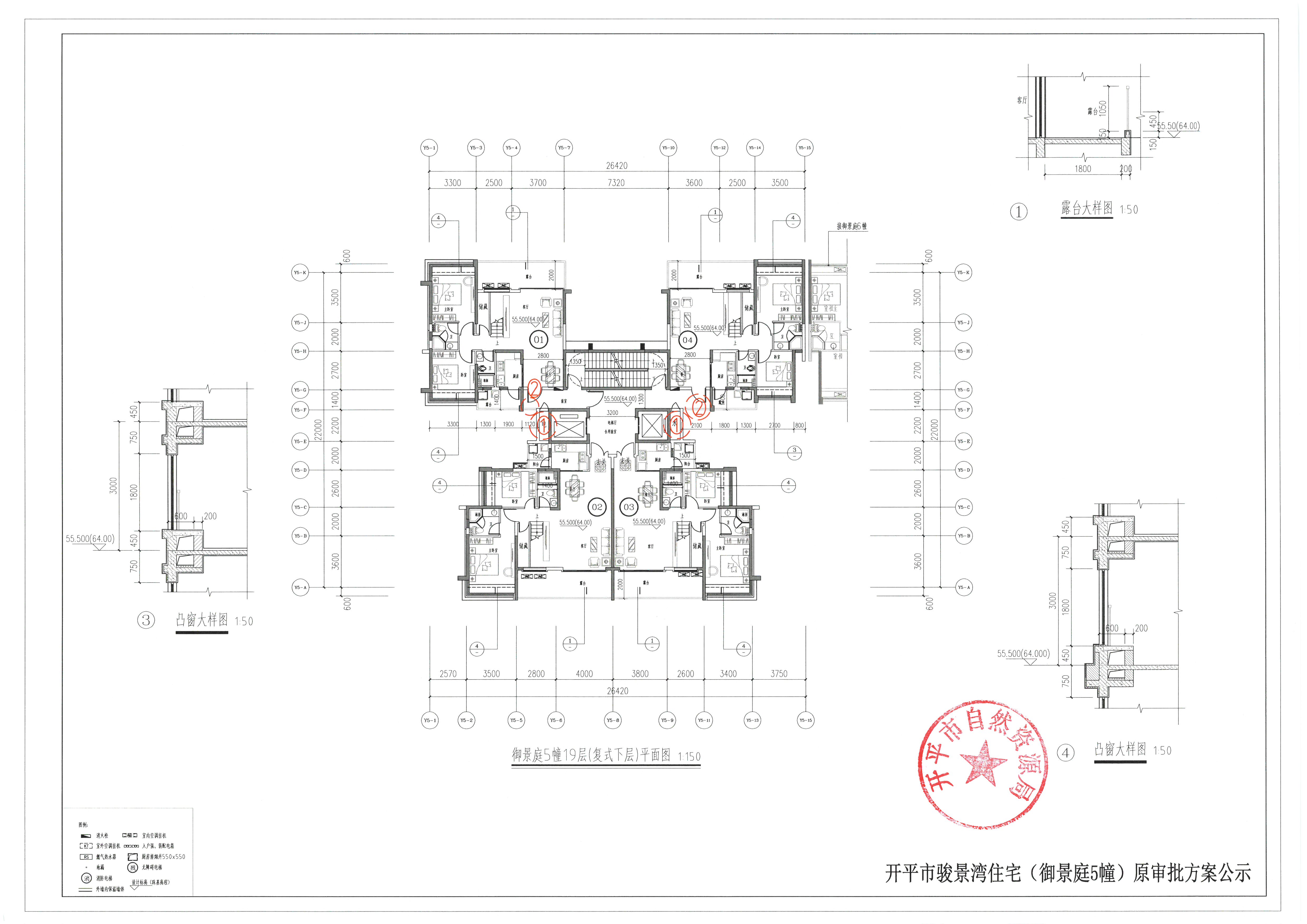
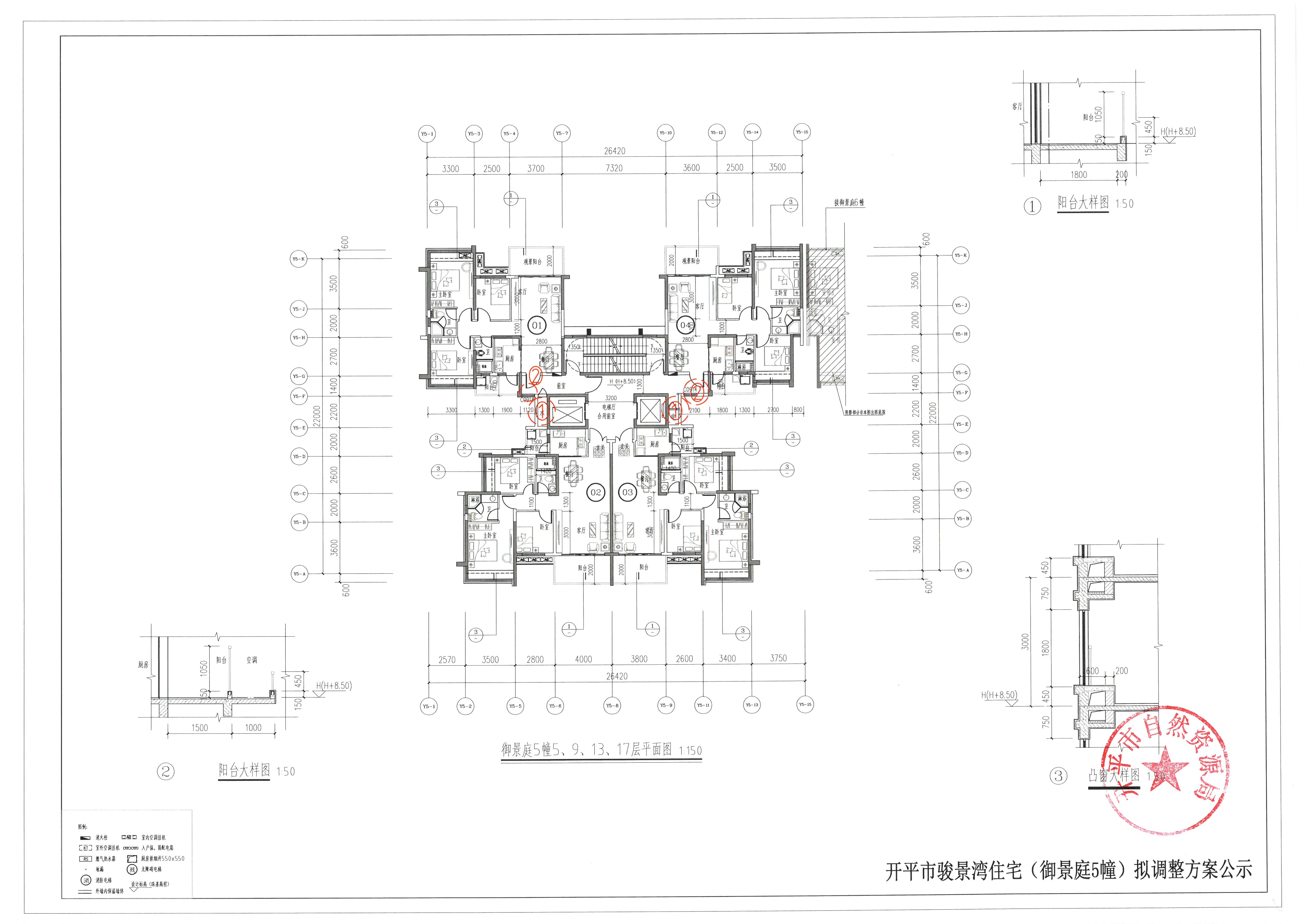
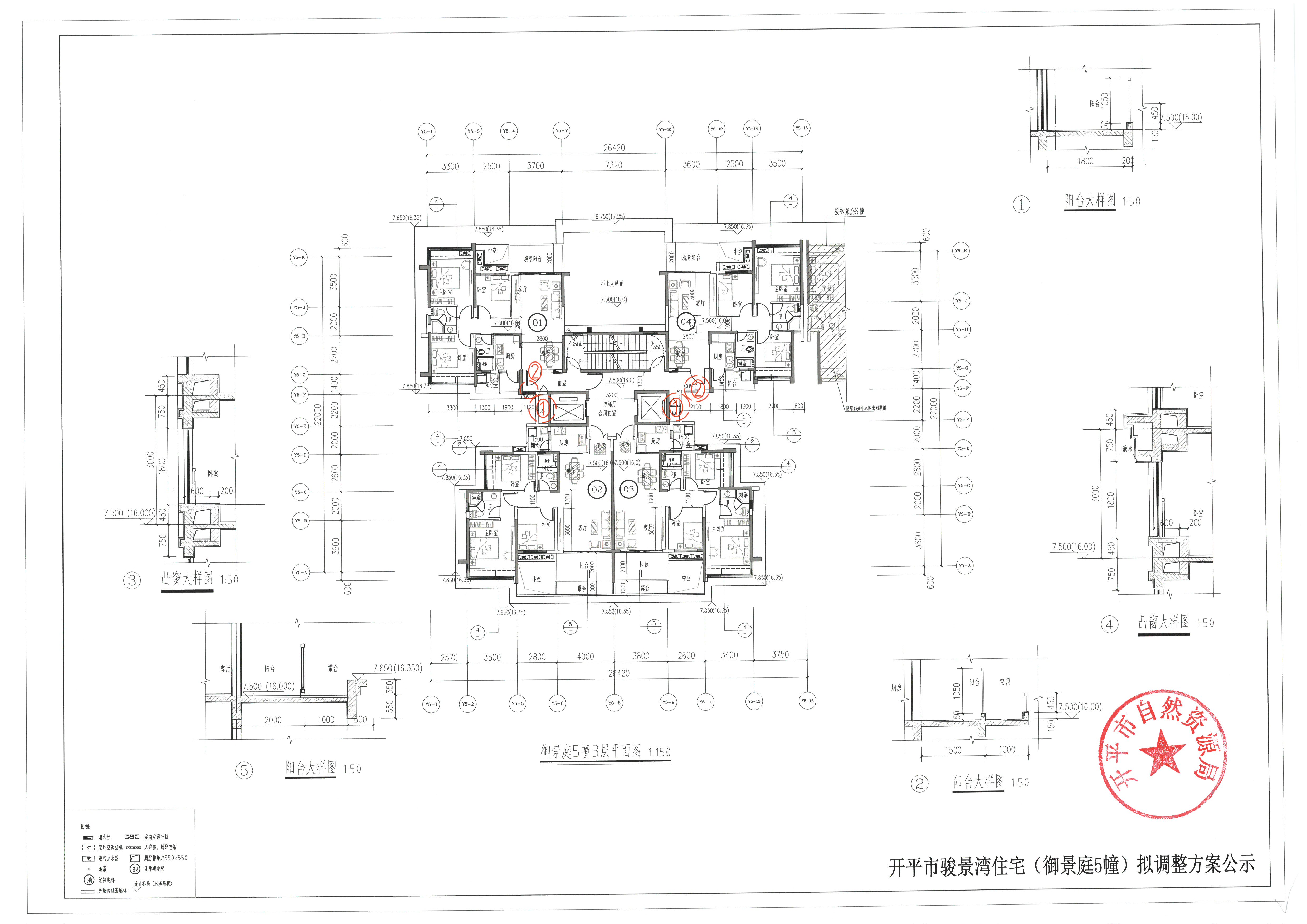
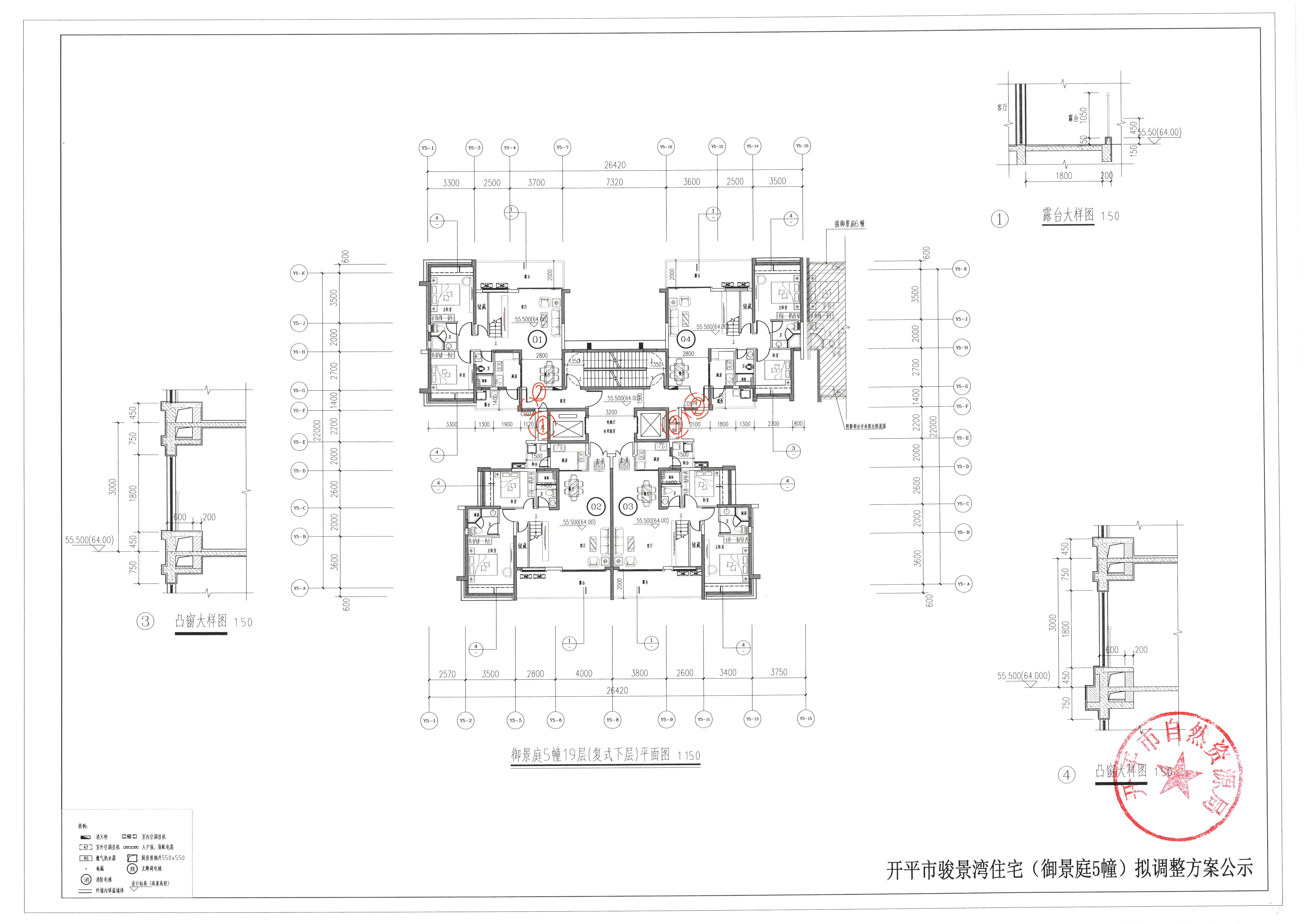
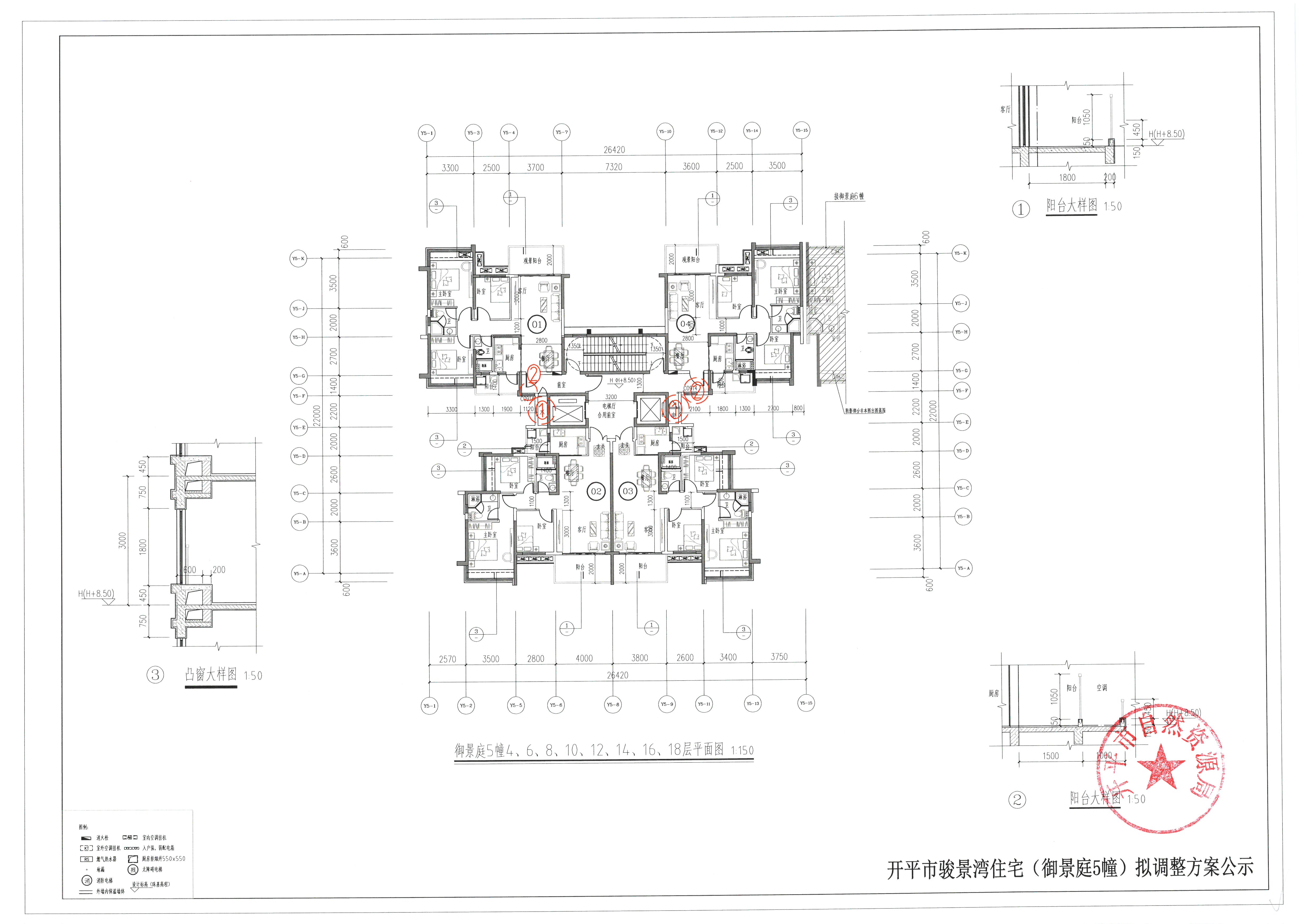
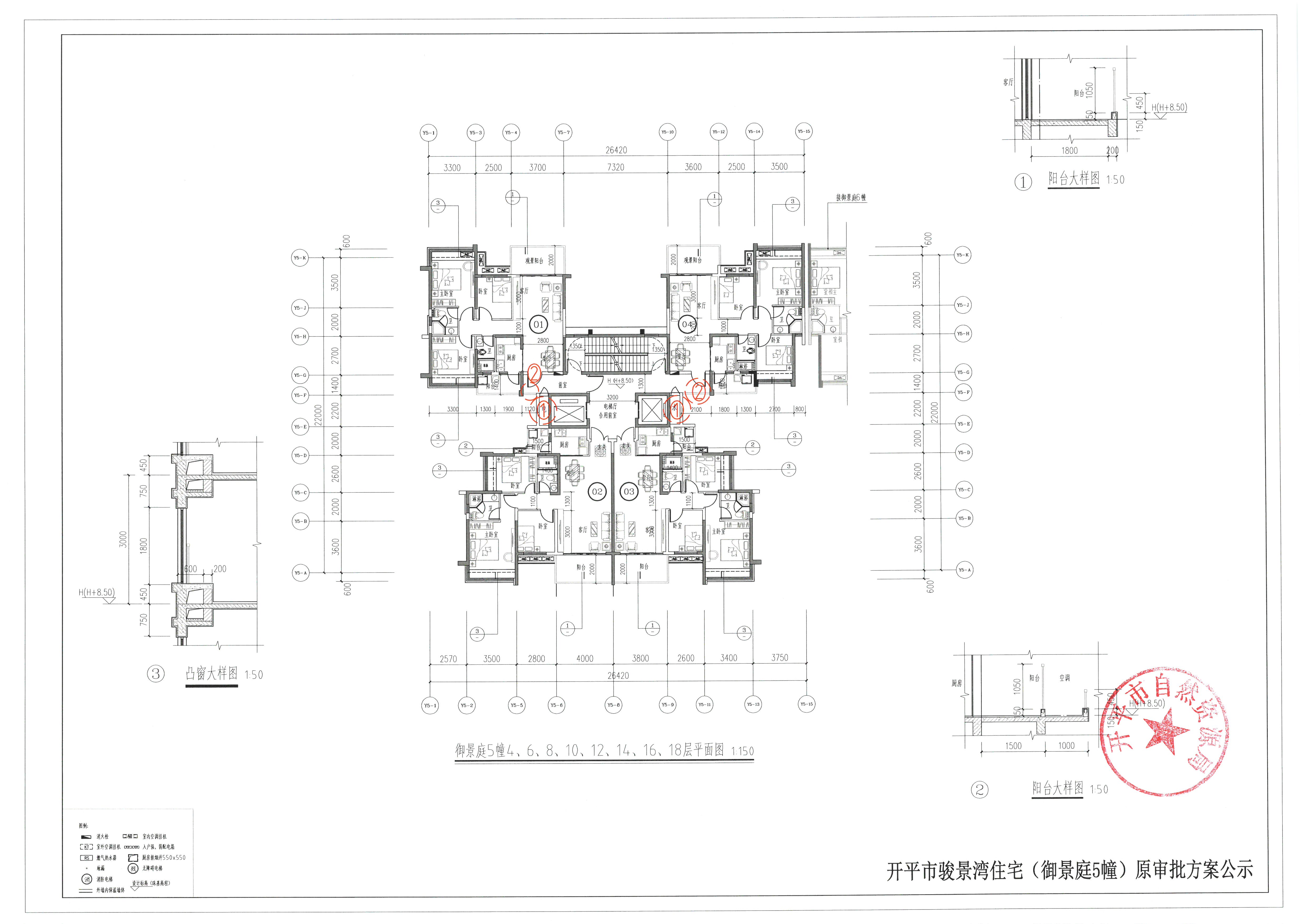
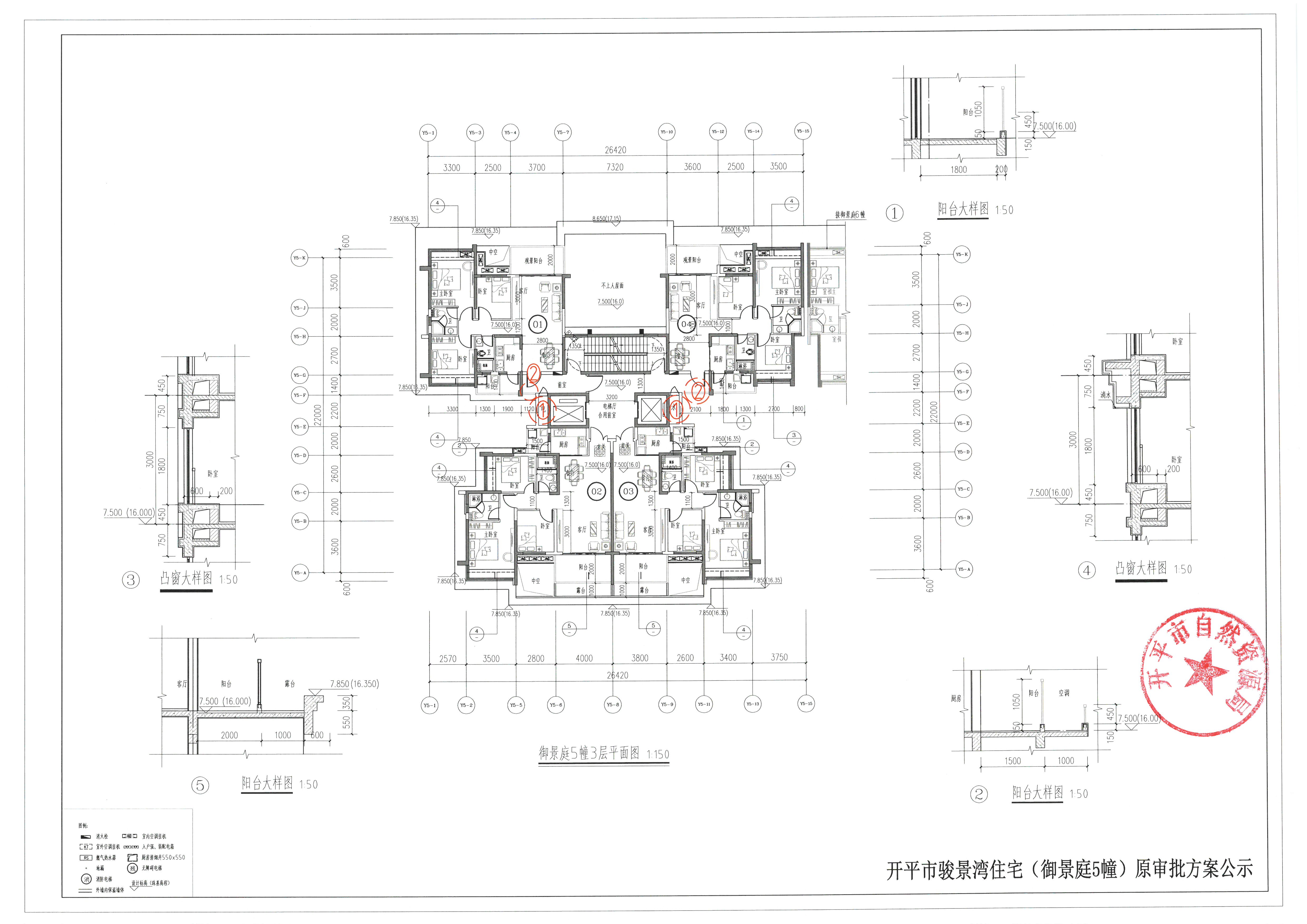
关于开平市原氮肥厂B地块开平市骏景湾海岸住宅小区住宅(御景庭5幢)建筑设计报建图调整的公示
发布日期:2020-01-09 10:15
来源:本网
打印
【字体:

SKM_C22620010909550_0004.jpgSKM_C22620010909450_0014.jpgSKM_C22620010909450_0013.jpgSKM_C22620010909450_0012.jpgSKM_C22620010909450_0011.jpgSKM_C22620010909450_0010.jpgSKM_C22620010909450_0009.jpgSKM_C22620010909450_0008.jpgSKM_C22620010909450_0007.jpgSKM_C22620010909450_0006.jpgSKM_C22620010909450_0005.jpgSKM_C22620010909450_0004.jpgSKM_C22620010909450_0003.jpgSKM_C22620010909450_0002.jpgSKM_C22620010909450_0001.jpgSKM_C22620010909400_0014.jpgSKM_C22620010909400_0013.jpgSKM_C22620010909400_0012.jpgSKM_C22620010909400_0011.jpgSKM_C22620010909400_0010.jpgSKM_C22620010909400_0009.jpgSKM_C22620010909400_0008.jpgSKM_C22620010909400_0007.jpgSKM_C22620010909400_0006.jpgSKM_C22620010909400_0005.jpgSKM_C22620010909400_0004.jpgSKM_C22620010909400_0003.jpgSKM_C22620010909400_0002.jpgSKM_C22620010909400_0001.jpg

相关附件:

 
世界杯十大买球平台推荐 |
联系我们 网站帮助 网站地图 服务申明
 版权所有:十大足彩平台    主办:十大足彩平台 
备案编号: 粤ICP备05079694号  网站标识码:4407830003  粤公网安备; 44078302000116
开平发布政务微博
开平发布政务微信