十大足彩平台

  • 足彩平台门户网站
  •   
  • 关注我们:
    • 搜索
今天是2019年4月13日 星期六欢迎进入开平市自然资源局!
澳门永利皇宫 沙巴体育 DB真人 BBIN电子官方网站 半岛体育 足球外围平台
您当前的位置:首页 > 开平市自然资源局 > 规划公告
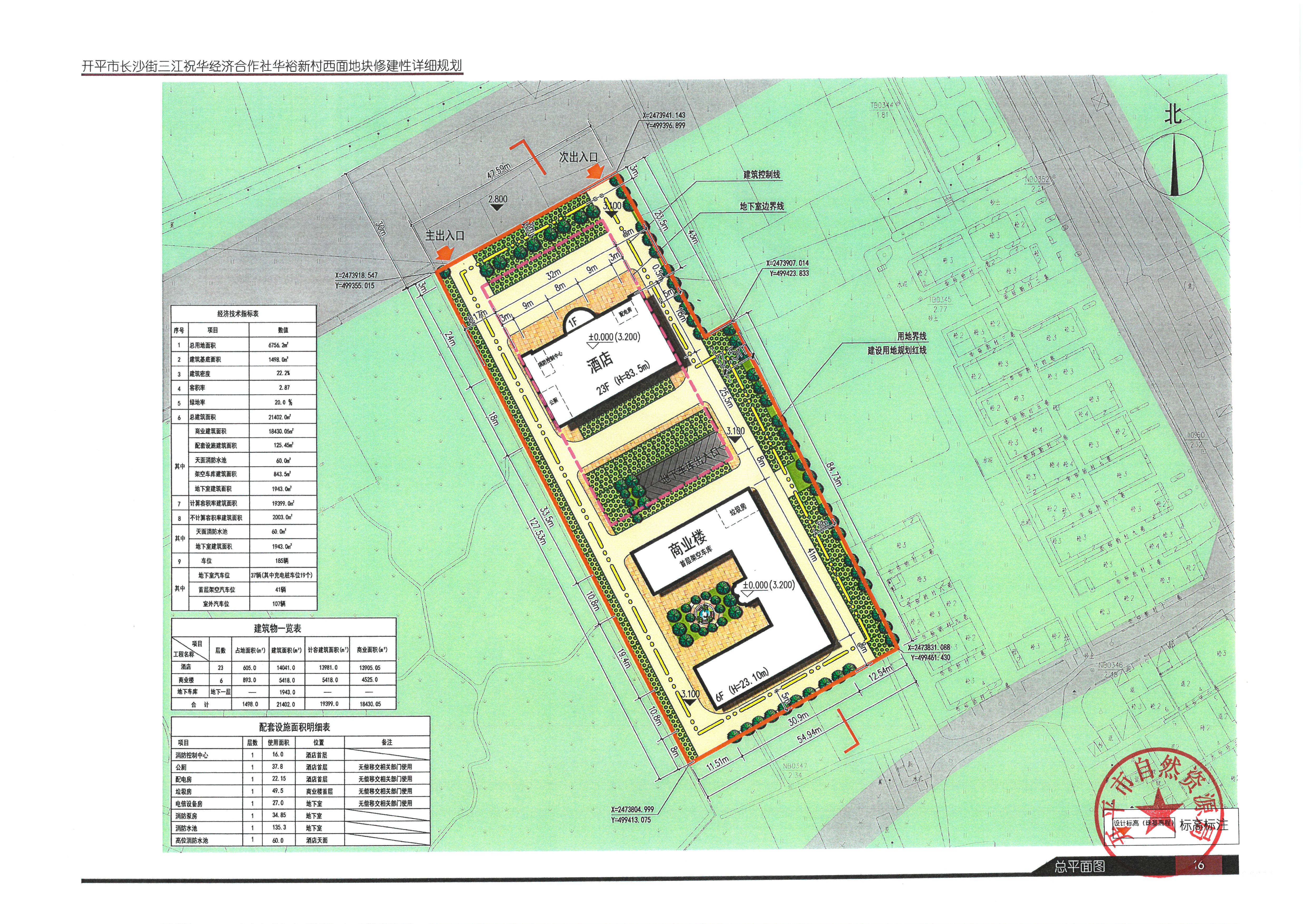
关于开平市长沙街三江祝华经济合作社裕新村西面地块项目详细规划方案的公示
发布日期:2020-03-27 09:31
来源:本网
打印
【字体:

SKM_C22620032709330.jpgSKM_C22620032709241_0002.jpgSKM_C22620032709241_0001.jpg

相关附件:

 
博彩平台 |
联系我们 网站帮助 网站地图 服务申明
 版权所有:亚洲十大足彩排行榜    主办:足彩平台 
备案编号: 粤ICP备05079694号  网站标识码:4407830003  粤公网安备; 44078302000116
开平发布政务微博
开平发布政务微信