十大足彩平台

  • 十大足彩平台门户网站
  •   
  • 关注我们:
    • 搜索
今天是2019年4月13日 星期六欢迎进入开平市自然资源局!
AG真人 十大足彩平台 太阳城娱乐 线上赌博app 开云电子(中国)官网 金沙娱乐城
您当前的位置:首页 > 开平市自然资源局 > 规划公告
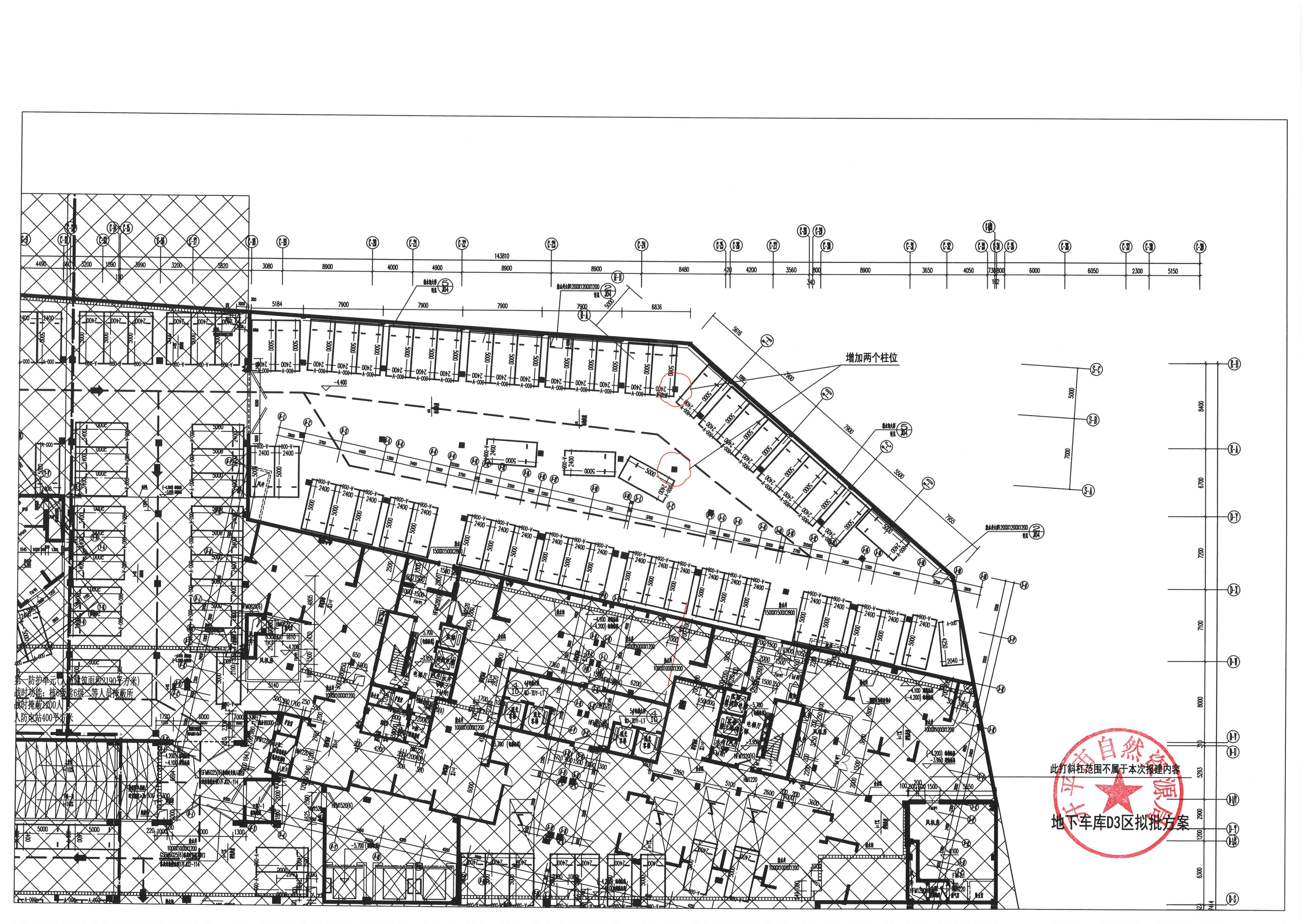
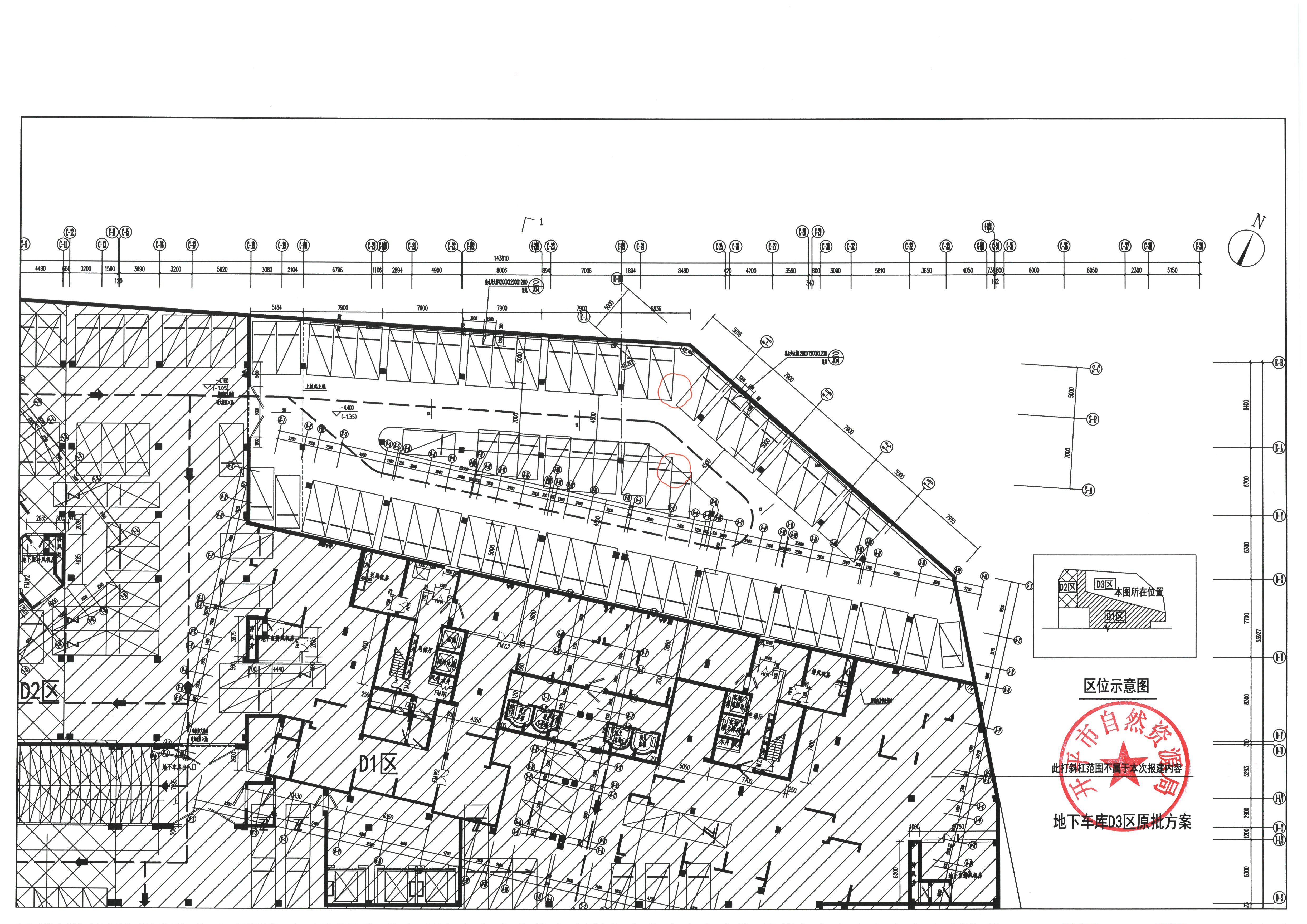
关于中业房地产有限公司地下车库D3区建筑设计报建图调整的公示
发布日期:2020-04-15 15:37
来源:本网
打印
【字体:

SKM_C22620041515250.jpgSKM_C22620041515260_0002.jpgSKM_C22620041515260_0001.jpg

相关附件:

 
2026世界杯下注平台 |
联系我们 网站帮助 网站地图 服务申明
 版权所有:亚洲十大足彩排行榜    主办:足彩平台 
备案编号: 粤ICP备05079694号  网站标识码:4407830003  粤公网安备; 44078302000116
开平发布政务微博
开平发布政务微信