十大足彩平台

  • 十大足彩平台门户网站
  •   
  • 关注我们:
    • 搜索
今天是2019年4月13日 星期六欢迎进入开平市自然资源局!
365bet(中文)官方网站 澳门银河网上赌场 新葡京博彩 易世博 买球app 世界杯投注官网,世界杯压球网站
您当前的位置:首页 > 开平市自然资源局 > 规划公告
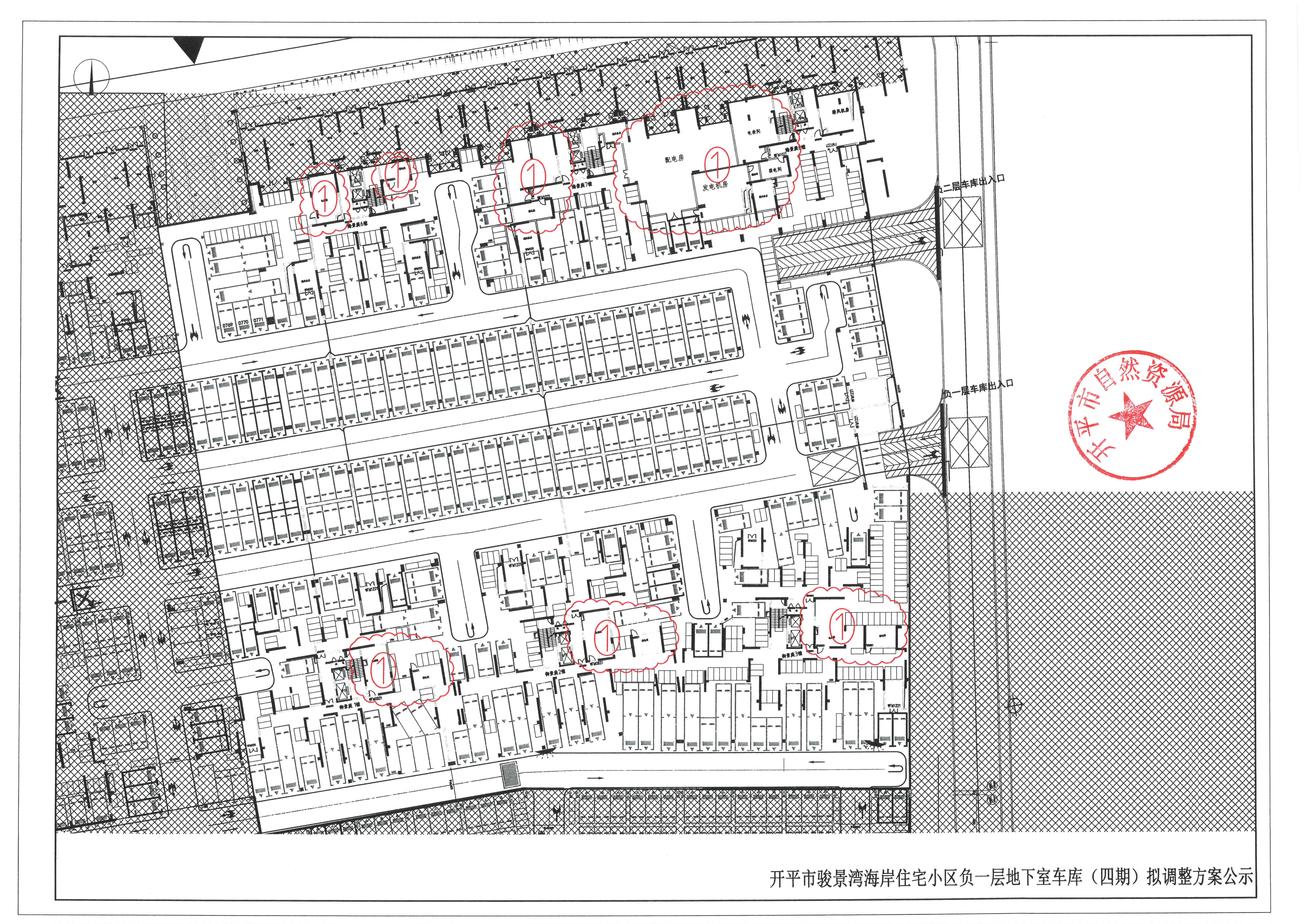
关于开平市原氮肥厂A地块、B地块开平市骏景湾海岸住宅小区住宅总平面规划方案和负一、二层地下室车库(四、五期)建筑设计报建图调整的公示
发布日期:2020-06-05 17:30
来源:本网
打印
【字体:

SKM_C22620060510100.jpgSKM_C22620060510101_0001.jpgSKM_C22620060510101_0002.jpgSKM_C22620060510101_0003.jpgSKM_C22620060510101_0004.jpgSKM_C22620060510101_0005.jpgSKM_C22620060510101_0006.jpgSKM_C22620060510101_0007.jpgSKM_C22620060510101_0008.jpgSKM_C22620060510101_0009.jpgSKM_C22620060510101_0010.jpg

相关附件:

 
沙巴体育 |
联系我们 网站帮助 网站地图 服务申明
 版权所有:亚洲十大足彩排行榜    主办:亚洲十大足彩排行榜 
备案编号: 粤ICP备05079694号  网站标识码:4407830003  粤公网安备; 44078302000116
开平发布政务微博
开平发布政务微信