十大足彩平台

  • 足彩平台门户网站
  •   
  • 关注我们:
    • 搜索
今天是2019年4月13日 星期六欢迎进入开平市自然资源局!
bet365亚洲官网 太阳城娱乐 博彩app 雷火体育 IM体育 世界杯买球
您当前的位置:首页 > 开平市自然资源局 > 规划公告
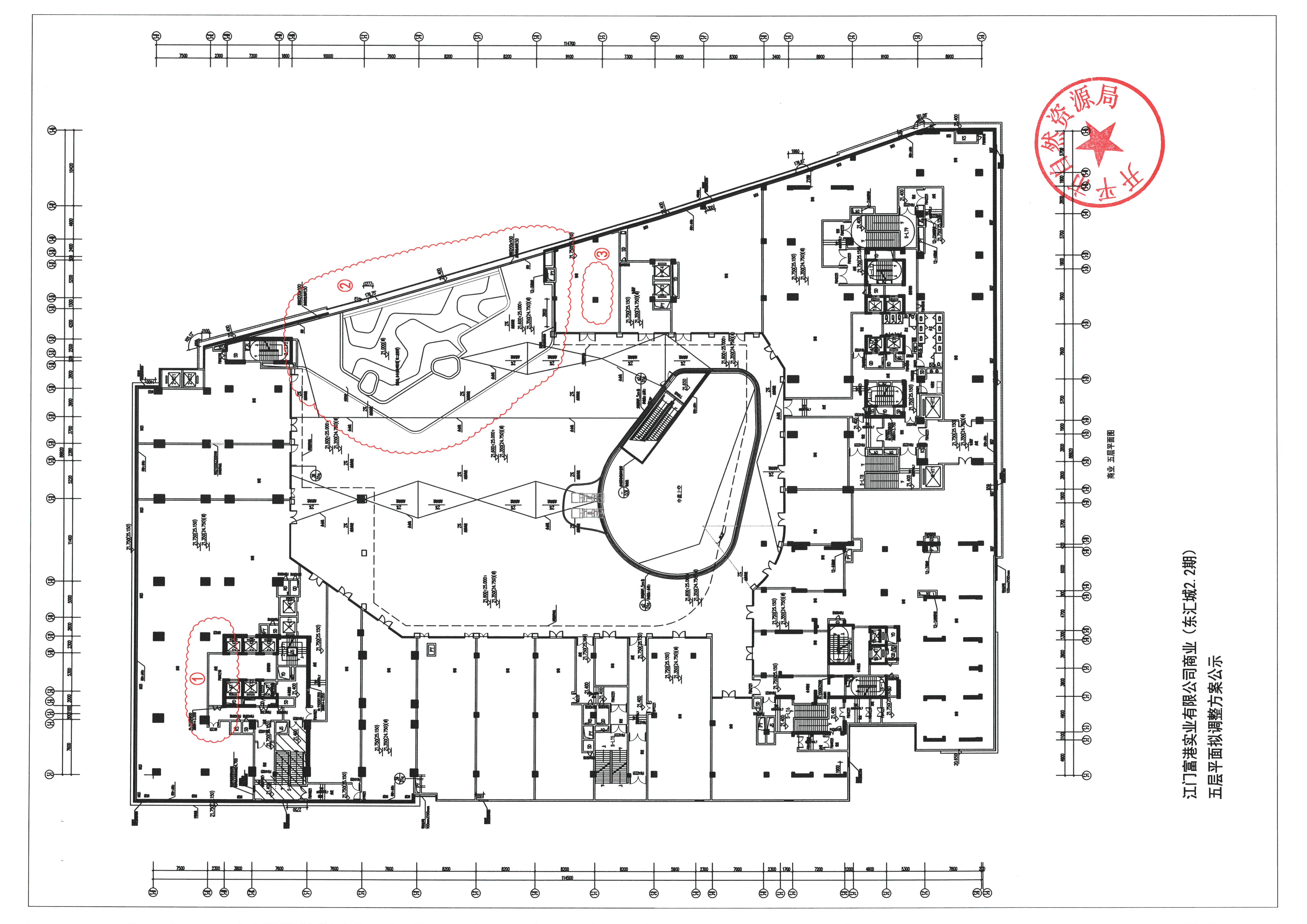
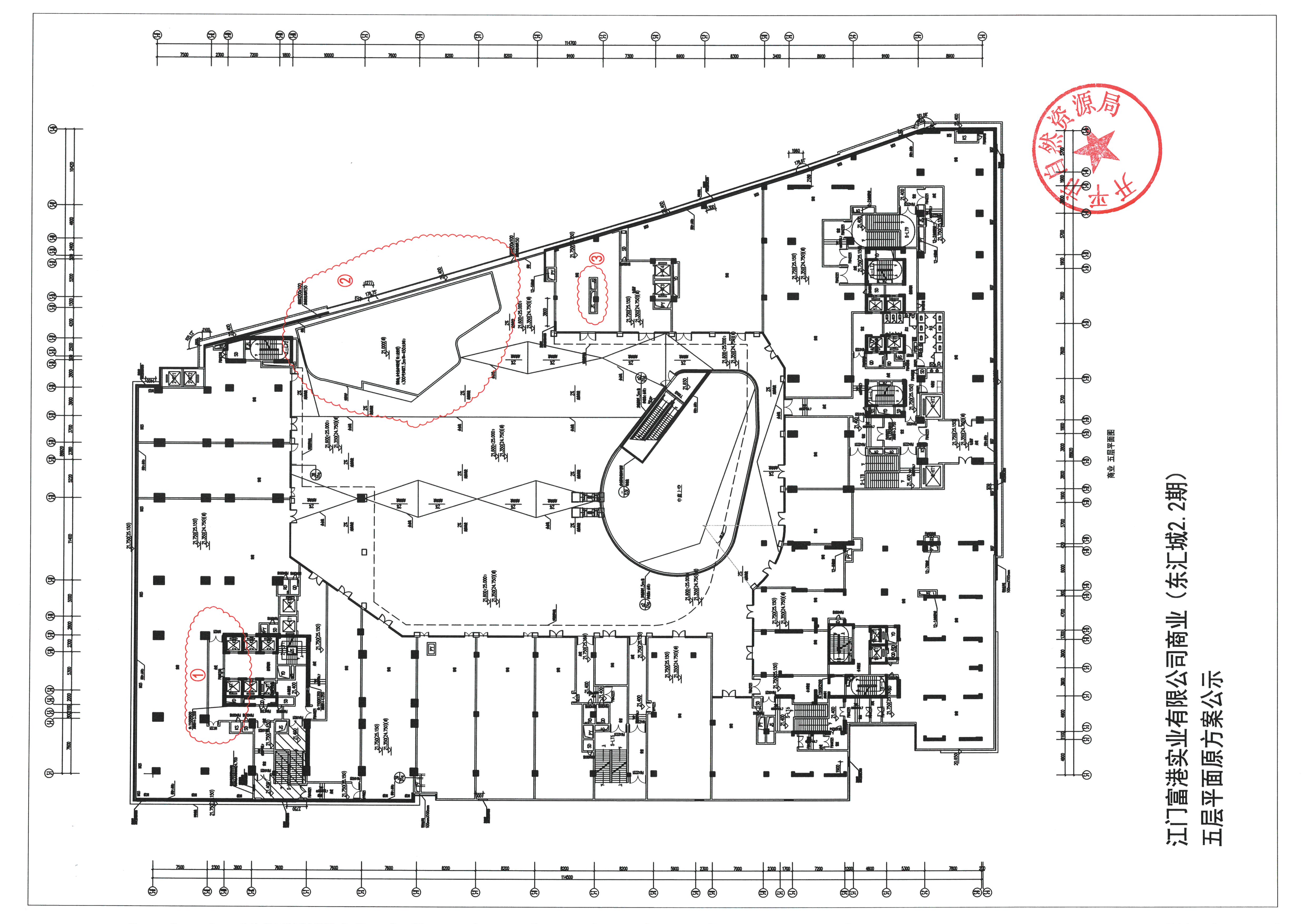
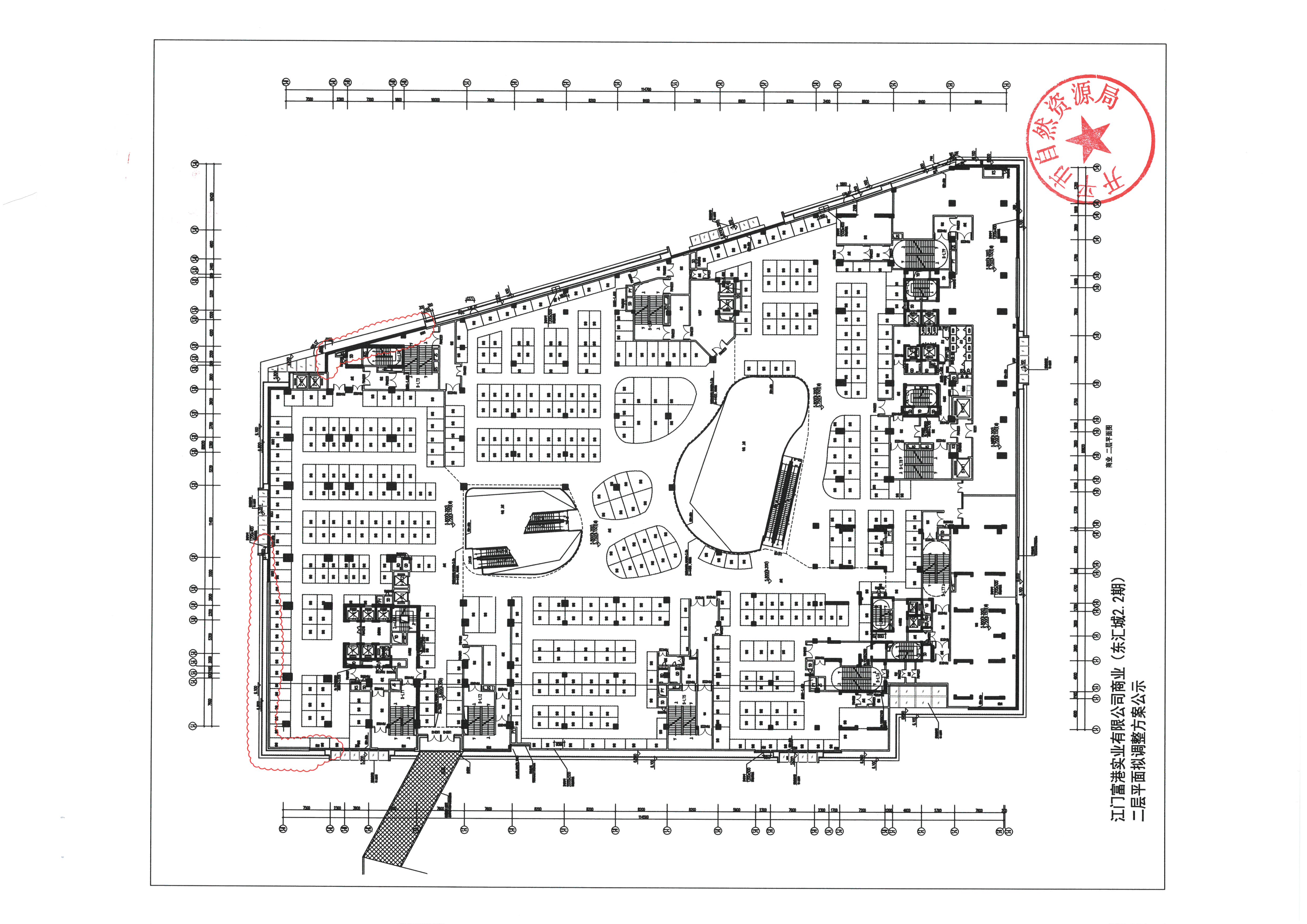
关于江门富港实业有限公司商业(东汇城2.2期)建筑设计报建图调整的公示
发布日期:2020-06-23 16:09
来源:本网
打印
【字体:

SKM_C22620062315440.jpgSKM_C22620062315450_0001.jpgSKM_C22620062315450_0002.jpgSKM_C22620062315450_0003.jpgSKM_C22620062315450_0004.jpgSKM_C22620062315450_0005.jpgSKM_C22620062315450_0006.jpgSKM_C22620062315450_0007.jpgSKM_C22620062315450_0008.jpgSKM_C22620062315450_0009.jpgSKM_C22620062315450_0010.jpgSKM_C22620062315450_0011.jpgSKM_C22620062315450_0012.jpgSKM_C22620062315450_0013.jpgSKM_C22620062315450_0015.jpgSKM_C22620062315450_0016.jpg

相关附件:

 
金沙娱乐城 |
联系我们 网站帮助 网站地图 服务申明
 版权所有:十大足彩平台    主办:十大足彩平台 
备案编号: 粤ICP备05079694号  网站标识码:4407830003  粤公网安备; 44078302000116
开平发布政务微博
开平发布政务微信