十大足彩平台

  • 十大足彩平台门户网站
  •   
  • 关注我们:
    • 搜索
今天是2019年4月13日 星期六欢迎进入开平市自然资源局!
博彩网站推荐 永利体育 永利体育 欧宝体育 365bet(中文)官方网站 澳门金沙博彩官网
您当前的位置:首页 > 开平市自然资源局 > 规划公告
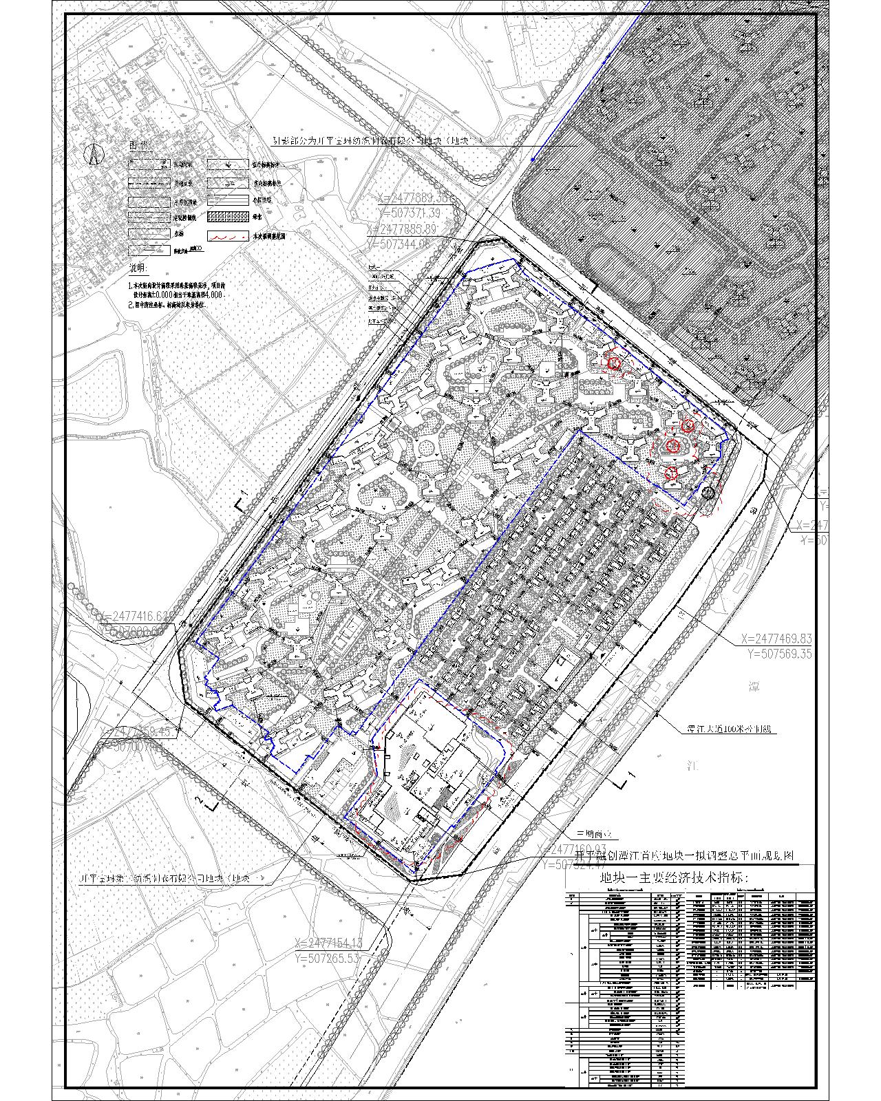
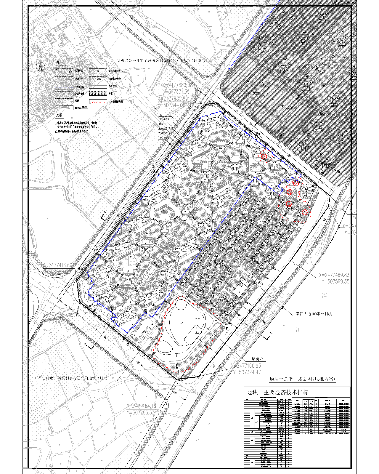
关于融创潭江首府总平面规划方案的调整公示
发布日期:2020-07-24 10:01
来源:本网
打印
【字体:

公示.jpg1、地块一原批方案(2019.8)-Model.png20200630-开平融创潭江首府地块一拟调整总图_t3-Model.jpg20200701-开平融创潭江首府项目修详规划(大)_页面_050.jpg

相关附件:

 
威尼斯人娱乐城 |
联系我们 网站帮助 网站地图 服务申明
 版权所有:足彩平台    主办:亚洲十大足彩排行榜 
备案编号: 粤ICP备05079694号  网站标识码:4407830003  粤公网安备; 44078302000116
开平发布政务微博
开平发布政务微信