十大足彩平台

  • 亚洲十大足彩排行榜门户网站
  •   
  • 关注我们:
    • 搜索
今天是2019年4月13日 星期六欢迎进入开平市自然资源局!
皇冠体育 世界杯下注 威尼斯人博彩 澳门威尼斯人app 澳门博彩官网 亚洲博彩网站
您当前的位置:首页 > 开平市自然资源局 > 规划公告
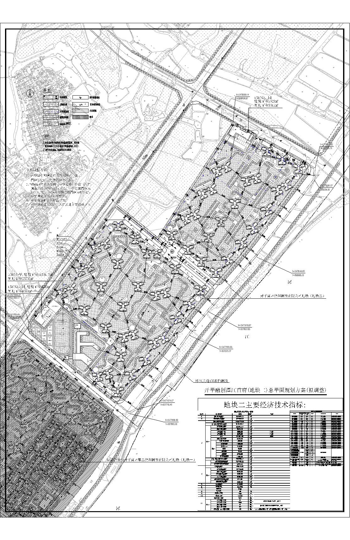
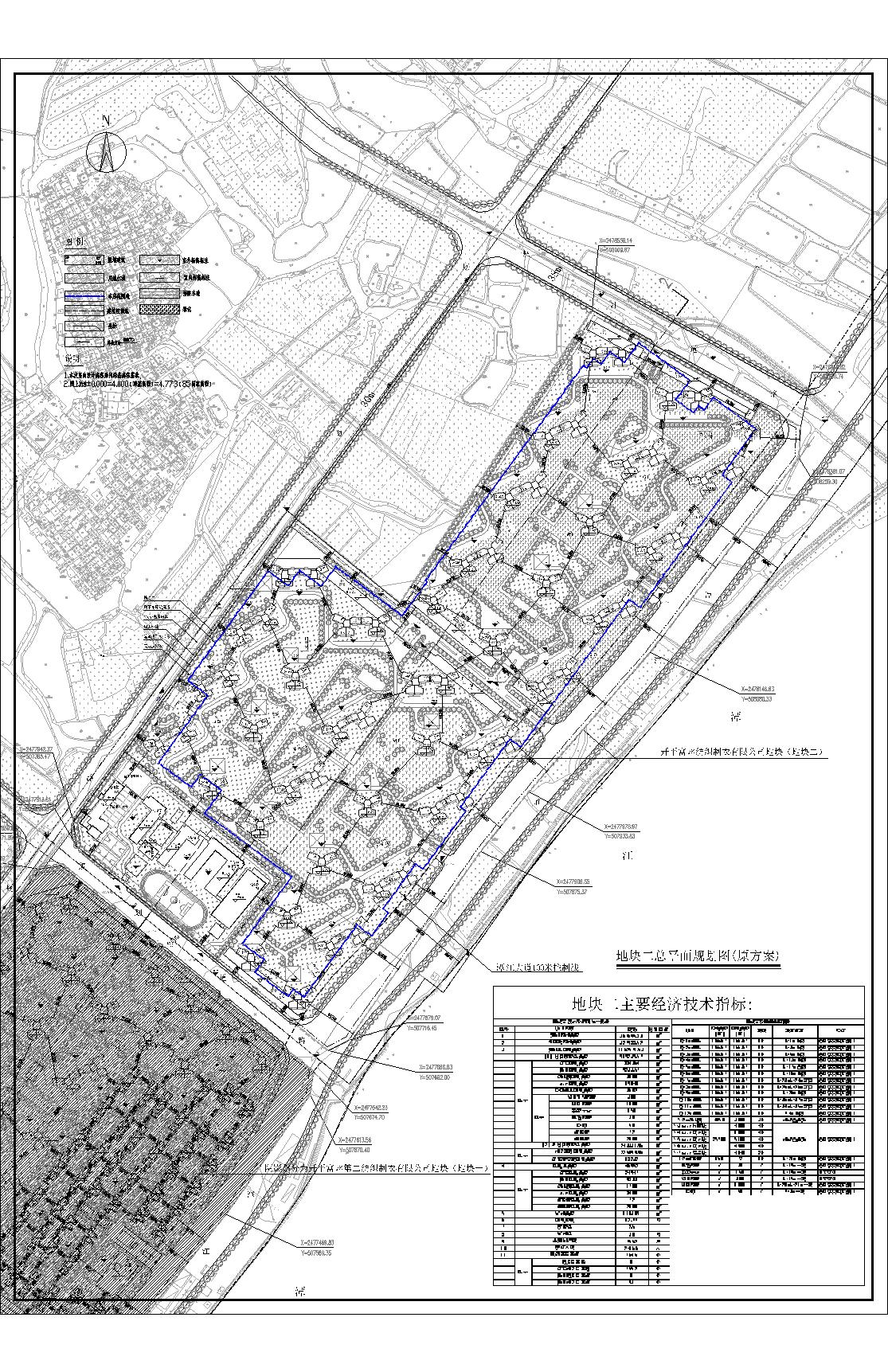
关于开平市水口镇沙冈金山纺织工业园融创谭江首府(地块二)修建性详细规划方案的公示
发布日期:2020-09-21 17:58
来源:本网
打印
【字体:

SKM_C22620092116030.jpgSKM_C22620092116040.jpg融创潭江首府详细规划(地块二)原方案-Model.jpg

20200819-开平融创潭江首府地块二总图_t3-Model.jpg


相关附件:

 
威尼斯人网上赌场 |
联系我们 网站帮助 网站地图 服务申明
 版权所有:足彩平台    主办:亚洲十大足彩排行榜 
备案编号: 粤ICP备05079694号  网站标识码:4407830003  粤公网安备; 44078302000116
开平发布政务微博
开平发布政务微信