十大足彩平台

  • 十大足彩平台门户网站
  •   
  • 关注我们:
    • 搜索
今天是2019年4月13日 星期六欢迎进入开平市自然资源局!
太阳城娱乐 易世博 2026世界杯投注 澳门太阳城 易世博 澳门金沙娱乐城官网
您当前的位置:首页 > 开平市自然资源局 > 规划公告
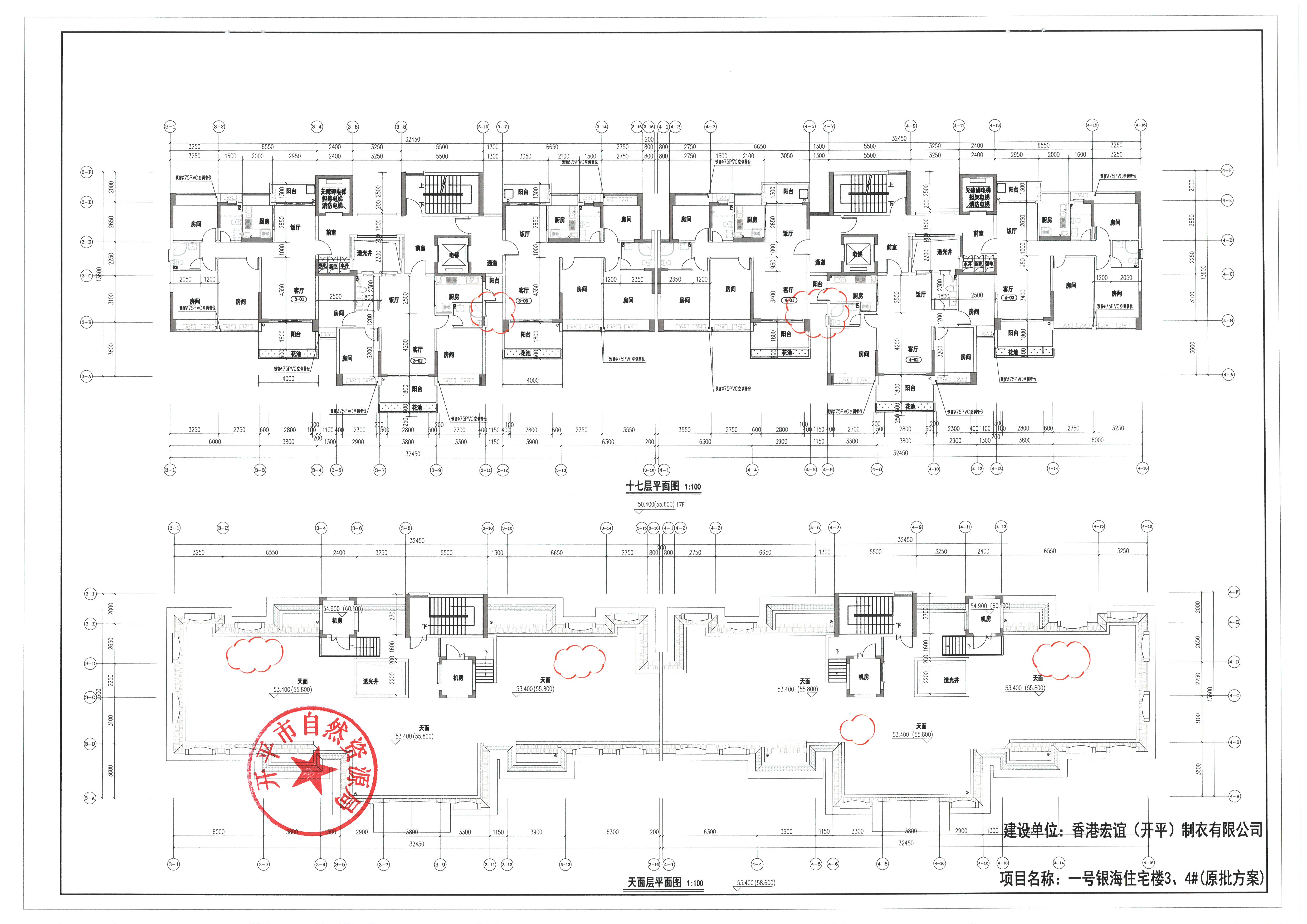
关于一号银海3、4幢;住宅5、6幢建筑设计报建图调整的公示
发布日期:2020-09-28 17:29
来源:本网
打印
【字体:

关于一号银海3、4幢;住宅5、6幢建筑设计报建图调整的公示.jpgSKM_C22620092811160_0012.jpgSKM_C22620092811160_0011.jpgSKM_C22620092811160_0010.jpgSKM_C22620092811160_0009.jpgSKM_C22620092811160_0008.jpgSKM_C22620092811160_0007.jpgSKM_C22620092811160_0006.jpgSKM_C22620092811160_0005.jpgSKM_C22620092811160_0004.jpgSKM_C22620092811160_0003.jpgSKM_C22620092811160_0002.jpgSKM_C22620092811160_0001.jpg

相关附件:

 
威尼斯人网上赌场 |
联系我们 网站帮助 网站地图 服务申明
 版权所有:亚洲十大足彩排行榜    主办:亚洲十大足彩排行榜 
备案编号: 粤ICP备05079694号  网站标识码:4407830003  粤公网安备; 44078302000116
开平发布政务微博
开平发布政务微信